Account: R8965481
April 1, 2026
| Account | Parcel | Account Type | Tax Year | Buildings | Actual Value | Local Govt Assessed Value | School Assessed Value |
|---|---|---|---|---|---|---|---|
| R8965481 | 105909308013 | Residential | 2026 | 1 | 549,018 | 34,320 | 38,710 |
| Legal |
|---|
| Lot 13 Block 8 JOHNSTOWN FARMS FG NO 3 AMD NO. 1 |
| Subdivision | Block | Lot | Land Economic Area |
|---|---|---|---|
| JOHNSTOWN FARMS FG NO. 3 AMD NO. 1 | 8 | 13 | JOHNSTOWN FARMS FG #3 |
| Property Address | Property City | Section | Township | Range |
|---|---|---|---|---|
| 886 HURON ST | JOHNSTOWN | 09 | 04 | 67 |
| Account | Parcel | Account Type | Tax Year | Buildings | Actual Value | Local Govt Assessed Value | School Assessed Value |
|---|---|---|---|---|---|---|---|
| R8965481 | 105909308013 | Residential | 2026 | 1 | 549,018 | 34,320 | 38,710 |
| Account | Owner Name | Address |
|---|---|---|
| R8965481 | CALVILLO SAUL HERNANDEZ | 886 HURON ST JOHNSTOWN, CO 805349382 |
| R8965481 | HERNANDEZ SELINA |
| Account | Parcel | Account Type | Tax Year | Buildings | Actual Value | Local Govt Assessed Value | School Assessed Value |
|---|---|---|---|---|---|---|---|
| R8965481 | 105909308013 | Residential | 2026 | 1 | 549,018 | 34,320 | 38,710 |
| Reception | Rec Date | Type | Grantor | Grantee | Doc Fee | Sale Date | Sale Price |
|---|---|---|---|---|---|---|---|
| 4568150 | 02-21-2020 | PLT | JOHNSTOWN FARMS FG #3 | JOHNSTOWN FARMS FG #3 | 0.00 | 01-02-2020 | 0 |
| 4661826 | 12-16-2020 | SWD | TF JOHNSTOWN FARMS LP | CENTURY LAND HOLDINGS LLC | 1,102.31 | 12-11-2020 | 11,023,100 |
| 4827101 | 05-12-2022 | PLT | JOHNSTOWN FARMS FG NO 3 AM NO 1 | JOHNSTOWN FARMS FG NO 3 AM NO 1 | 0.00 | 05-11-2022 | 0 |
| 4961935 | 05-23-2024 | SWD | CENTURY LAND HOLDINGS LLC | CALVILLO SAUL HERNANDEZ; HERNANDEZ SELINA | 59.50 | 04-23-2024 | 595,000 |
*If the hyperlink for the reception number does not work, try a manual search in the Clerk and Recorder records. Use the Grantor or Grantee in your search.
| Account | Parcel | Account Type | Tax Year | Buildings | Actual Value | Local Govt Assessed Value | School Assessed Value |
|---|---|---|---|---|---|---|---|
| R8965481 | 105909308013 | Residential | 2026 | 1 | 549,018 | 34,320 | 38,710 |
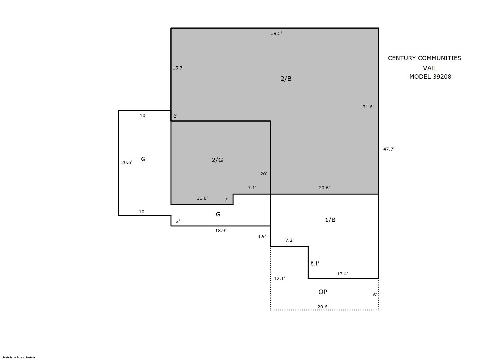
Building 1
| AccountNo | Building ID | Occupancy |
|---|---|---|
| R8965481 | 1 | Single Family Residential |
| ID | Type | NBHD | Occupancy | % Complete | Bedrooms | Baths |
|---|---|---|---|---|---|---|
| 1 | Residential | 0J2080 | Single Family Residential | 100 | 3 | 3.00 |
| ID | Exterior | Roof Cover | Interior | HVAC | Perimeter | Units | Unit Type | Make |
|---|---|---|---|---|---|---|---|---|
| 1 | Frame Siding | Composition Shingle | Drywall | Central Air to Air | 321 | 0 | NA | NA |
| ID | Square Ft | Condo SF | Total Basement SF | Finished Basement SF | Garage SF | Carport SF | Balcony SF | Porch SF |
|---|---|---|---|---|---|---|---|---|
| 1 | 2,545 | 0 | 1,273 | 0 | 578 | 0 | 0 | 168 |
| ID | Built As | Square Ft | Year Built | Stories | Length | Width |
|---|---|---|---|---|---|---|
| 1.00 | 2 Story | 2,545 | 2024 | 2 | 0 | 0 |
| ID | Detail Type | Description | Units |
|---|---|---|---|
| 1 | Add On | Fireplace Gas | 1.00 |
| 1 | Basement | Full Daylight | 1.00 |
| 1 | Basement | Total Basement SF | 1273.00 |
| 1 | Fixture | Full Bath | 3.00 |
| 1 | Garage | Attached | 578.00 |
| 1 | Porch | Slab Roof Ceil | 168.00 |
| 1 | Rough In | Rough In | 1.00 |
| Account | Parcel | Account Type | Tax Year | Buildings | Actual Value | Local Govt Assessed Value | School Assessed Value |
|---|---|---|---|---|---|---|---|
| R8965481 | 105909308013 | Residential | 2026 | 1 | 549,018 | 34,320 | 38,710 |
| Type | Code | Description | Actual Value | Local Govt Assessed Value | School Assessed Value | Acres | Land SqFt |
|---|---|---|---|---|---|---|---|
| Improvement | 1212 | SINGLE FAMILY RESIDENTIAL IMPROVEMENTS | 431,018 | 26,940 | 30,390 | 0.000 | 0 |
| Land | 1112 | SINGLE FAMILY RESIDENTIAL-LAND | 118,000 | 7,380 | 8,320 | 0.210 | 9,135 |
| Totals | - | - | 549,018 | 34,320 | 38,710 | 0.210 | 9,135 |
Comparable sales for your Residential or Commercial property may be found using our SALES SEARCH TOOL
Values are updated annually on May 1st for Real Property and June 15th for Personal Property and Oil and Gas.
| Account | Parcel | Account Type | Tax Year | Buildings | Actual Value | Local Govt Assessed Value | School Assessed Value |
|---|---|---|---|---|---|---|---|
| R8965481 | 105909308013 | Residential | 2026 | 1 | 549,018 | 34,320 | 38,710 |
| Tax Area | District ID | District Name | Local Govt Mill Levy |
School Mill Levy |
Estimated Taxes |
|---|---|---|---|---|---|
| 6340 | 0700 | AIMS JUNIOR COLLEGE | 6.313 | 0.000 | $216.66 |
| 6340 | 0510 | FRONT RANGE FIRE RESCUE FIRE PROTECTION DISTRICT | 11.483 | 0.000 | $394.10 |
| 6340 | 1694 | JOHNSTOWN FARMS EAST METROPOLITAN DISTRICT | 56.097 | 0.000 | $1,925.25 |
| 6340 | 0414 | JOHNSTOWN TOWN | 23.947 | 0.000 | $821.86 |
| 6340 | 0301 | NORTHERN COLORADO WATER (NCW) | 1.000 | 0.000 | $34.32 |
| 6340 | 0205 | SCHOOL DIST RE5J-JOHNSTOWN | 0.000 | 36.271 | $1,404.05 |
| 6340 | 0100 | WELD COUNTY | 15.956 | 0.000 | $547.61 |
| 6340 | 1200 | WEST GREELEY CONSERVATION | 0.414 | 0.000 | $14.21 |
| Total | - | - | 115.21 | 36.271 | $5,358.06 |
The estimate of tax is based on the prior year mill levy and the 2025 projected assessment rates. Mill levies and tax estimates will be updated yearly on December 22nd for the current year. Additional information can be found at https://assessor.weld.gov


