Account: R8969837
April 5, 2026
| Account | Parcel | Account Type | Tax Year | Buildings | Actual Value | Local Govt Assessed Value | School Assessed Value |
|---|---|---|---|---|---|---|---|
| R8969837 | 147135442004 | Residential | 2026 | 1 | 491,694 | 30,730 | 34,660 |
| Legal |
|---|
| Lot 4 Block 5 SILVER PEAKS FG 1 AMD 3 |
| Subdivision | Block | Lot | Land Economic Area |
|---|---|---|---|
| SILVER PEAKS FG 1 AMD 3 | 5 | 4 | SILVERPEAKS |
| Property Address | Property City | Section | Township | Range |
|---|---|---|---|---|
| 913 WILLIAM WAY | LOCHBUIE | 35 | 01 | 66 |
| Account | Parcel | Account Type | Tax Year | Buildings | Actual Value | Local Govt Assessed Value | School Assessed Value |
|---|---|---|---|---|---|---|---|
| R8969837 | 147135442004 | Residential | 2026 | 1 | 491,694 | 30,730 | 34,660 |
| Account | Owner Name | Address |
|---|---|---|
| R8969837 | BUSTAMANTE JACINDA | 913 WILLIAM WAY LOCHBUIE, CO 806037826 |
| R8969837 | ARAGON CARLOS BARRON JR |
| Account | Parcel | Account Type | Tax Year | Buildings | Actual Value | Local Govt Assessed Value | School Assessed Value |
|---|---|---|---|---|---|---|---|
| R8969837 | 147135442004 | Residential | 2026 | 1 | 491,694 | 30,730 | 34,660 |
| Reception | Rec Date | Type | Grantor | Grantee | Doc Fee | Sale Date | Sale Price |
|---|---|---|---|---|---|---|---|
| 4659631 | 12-11-2020 | PLT | SILVER PEAKS FG NO 1 AM NO 3 | SILVER PEAKS FG NO 1 AM NO 3 | 0.00 | 10-02-2020 | 0 |
| 4663082 | 12-18-2020 | SWD | LOB LLC | FORESTAR USA REAL ESTATE GROUP INC | 701.15 | 12-15-2020 | 7,011,500 |
| 4859932 | 10-07-2022 | SWD | FORESTAR (USA) REAL ESTATE GROUP INC | MELODY HOMES INC | 248.30 | 10-05-2022 | 2,483,000 |
| 4873127 | 12-20-2022 | DN | FORESTAR (USA) REALESTATE GROUP INC | MELODY HOMES INC | 0.00 | 12-19-2022 | 0 |
| 4904141 | 06-16-2023 | SWD | MELODY HOMES INC | BUSTAMANTE JACINDA; ARAGON CARLOS BARRON JR | 50.00 | 06-15-2023 | 500,000 |
*If the hyperlink for the reception number does not work, try a manual search in the Clerk and Recorder records. Use the Grantor or Grantee in your search.
| Account | Parcel | Account Type | Tax Year | Buildings | Actual Value | Local Govt Assessed Value | School Assessed Value |
|---|---|---|---|---|---|---|---|
| R8969837 | 147135442004 | Residential | 2026 | 1 | 491,694 | 30,730 | 34,660 |
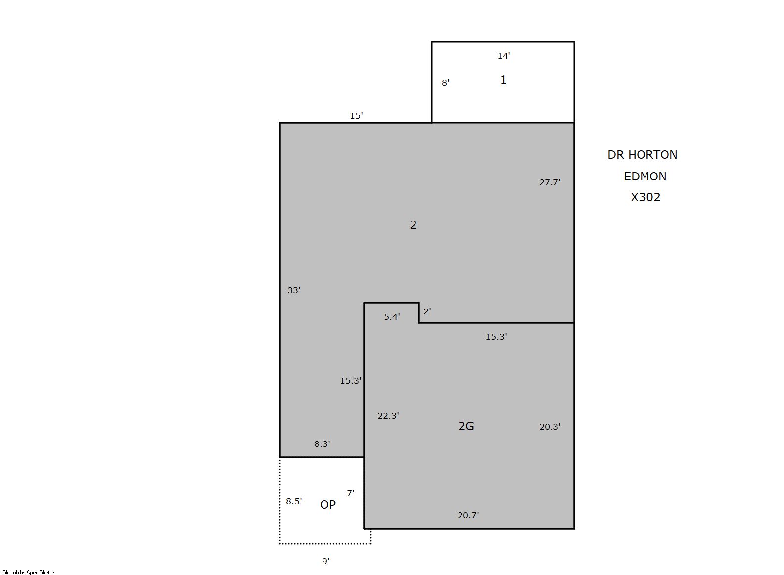
Building 1
| AccountNo | Building ID | Occupancy |
|---|---|---|
| R8969837 | 1 | Single Family Residential |
| ID | Type | NBHD | Occupancy | % Complete | Bedrooms | Baths |
|---|---|---|---|---|---|---|
| 1 | Residential | 4L0000 | Single Family Residential | 100 | 4 | 3.00 |
| ID | Exterior | Roof Cover | Interior | HVAC | Perimeter | Units | Unit Type | Make |
|---|---|---|---|---|---|---|---|---|
| 1 | Frame Siding | Composition Shingle | Drywall | Central Air to Air | 282 | 0 | NA | NA |
| ID | Square Ft | Condo SF | Total Basement SF | Finished Basement SF | Garage SF | Carport SF | Balcony SF | Porch SF |
|---|---|---|---|---|---|---|---|---|
| 1 | 1,885 | 0 | 0 | 0 | 431 | 0 | 0 | 72 |
| ID | Built As | Square Ft | Year Built | Stories | Length | Width |
|---|---|---|---|---|---|---|
| 1.00 | 2 Story | 1,885 | 2023 | 2 | 0 | 0 |
| ID | Detail Type | Description | Units |
|---|---|---|---|
| 1 | Fixture | Full Bath | 2.00 |
| 1 | Fixture | Half Bath | 1.00 |
| 1 | Garage | Attached | 431.00 |
| 1 | Porch | Slab Roof Ceil | 72.00 |
| Account | Parcel | Account Type | Tax Year | Buildings | Actual Value | Local Govt Assessed Value | School Assessed Value |
|---|---|---|---|---|---|---|---|
| R8969837 | 147135442004 | Residential | 2026 | 1 | 491,694 | 30,730 | 34,660 |
| Type | Code | Description | Actual Value | Local Govt Assessed Value | School Assessed Value | Acres | Land SqFt |
|---|---|---|---|---|---|---|---|
| Improvement | 1212 | SINGLE FAMILY RESIDENTIAL IMPROVEMENTS | 366,694 | 22,920 | 25,850 | 0.000 | 0 |
| Land | 1112 | SINGLE FAMILY RESIDENTIAL-LAND | 125,000 | 7,810 | 8,810 | 0.135 | 5,875 |
| Totals | - | - | 491,694 | 30,730 | 34,660 | 0.135 | 5,875 |
Comparable sales for your Residential or Commercial property may be found using our SALES SEARCH TOOL
Values are updated annually on May 1st for Real Property and June 15th for Personal Property and Oil and Gas.
| Account | Parcel | Account Type | Tax Year | Buildings | Actual Value | Local Govt Assessed Value | School Assessed Value |
|---|---|---|---|---|---|---|---|
| R8969837 | 147135442004 | Residential | 2026 | 1 | 491,694 | 30,730 | 34,660 |
| Tax Area | District ID | District Name | Local Govt Mill Levy |
School Mill Levy |
Estimated Taxes |
|---|---|---|---|---|---|
| 5511 | 0700 | AIMS JUNIOR COLLEGE | 6.313 | 0.000 | $194.00 |
| 5511 | 0302 | CENTRAL COLORADO WATER (CCW) | 0.980 | 0.000 | $30.12 |
| 5511 | 0503 | GREATER BRIGHTON FIRE | 17.504 | 0.000 | $537.90 |
| 5511 | 1050 | HIGH PLAINS LIBRARY | 3.044 | 0.000 | $93.54 |
| 5511 | 0419 | LOCHBUIE TOWN | 6.443 | 0.000 | $197.99 |
| 5511 | 0203 | SCHOOL DIST RE3J-KEENESBURG | 0.000 | 15.822 | $548.39 |
| 5511 | 1576 | SILVER PEAKS EAST METRO DISTRICT | 75.895 | 0.000 | $2,332.25 |
| 5511 | 0100 | WELD COUNTY | 15.956 | 0.000 | $490.33 |
| Total | - | - | 126.135 | 15.822 | $4,424.52 |
The estimate of tax is based on the prior year mill levy and the 2025 projected assessment rates. Mill levies and tax estimates will be updated yearly on December 22nd for the current year. Additional information can be found at https://assessor.weld.gov


