Account: R8970512

April 1, 2026

Account Parcel Account Type Tax Year Buildings Actual Value Local Govt Assessed Value School Assessed Value
R8970512 080702263003 Residential 2026 1 430,846 26,930 30,380

Legal
Lot 3 Block 5 SUNSET RIDGE 3RD FG

Subdivision Block Lot Land Economic Area
SUNSET RIDGE 3RD FG 5 3 SUNSET RIDGE

Property Address Property City Section Township Range
905 PONDEROSA DR SEVERANCE 02 06 67




Account Parcel Account Type Tax Year Buildings Actual Value Local Govt Assessed Value School Assessed Value
R8970512 080702263003 Residential 2026 1 430,846 26,930 30,380

Account Owner Name Address
R8970512 HUBBS EDGAR P 905 PONDEROSA DR SEVERANCE, CO 805503822
R8970512 HUBBS MEGAN L


Account Parcel Account Type Tax Year Buildings Actual Value Local Govt Assessed Value School Assessed Value
R8970512 080702263003 Residential 2026 1 430,846 26,930 30,380

Reception Rec Date Type Grantor Grantee Doc Fee Sale Date Sale Price
4676278 01-27-2021 PLT SUNSET RIDGE 3RD FG SUNSET RIDGE 3RD FG 0.00 01-18-2021 0
4678226 02-02-2021 SWD RANGE VIEW PARTNERS LP SR SEVERANCE INVESTMENTS LLC 93.50 01-29-2021 935,000
4710200 04-29-2021 SWD SR SEVERANCE INVESTMENTS LLC JOURNEY HOMES LLC 330.00 04-28-2021 3,300,000
4749164 08-24-2021 SWD JOURNEY HOMES LLC HUBBS EDGAR P; HUBBS MEGAN L 40.28 08-23-2021 402,800



Account Parcel Account Type Tax Year Buildings Actual Value Local Govt Assessed Value School Assessed Value
R8970512 080702263003 Residential 2026 1 430,846 26,930 30,380

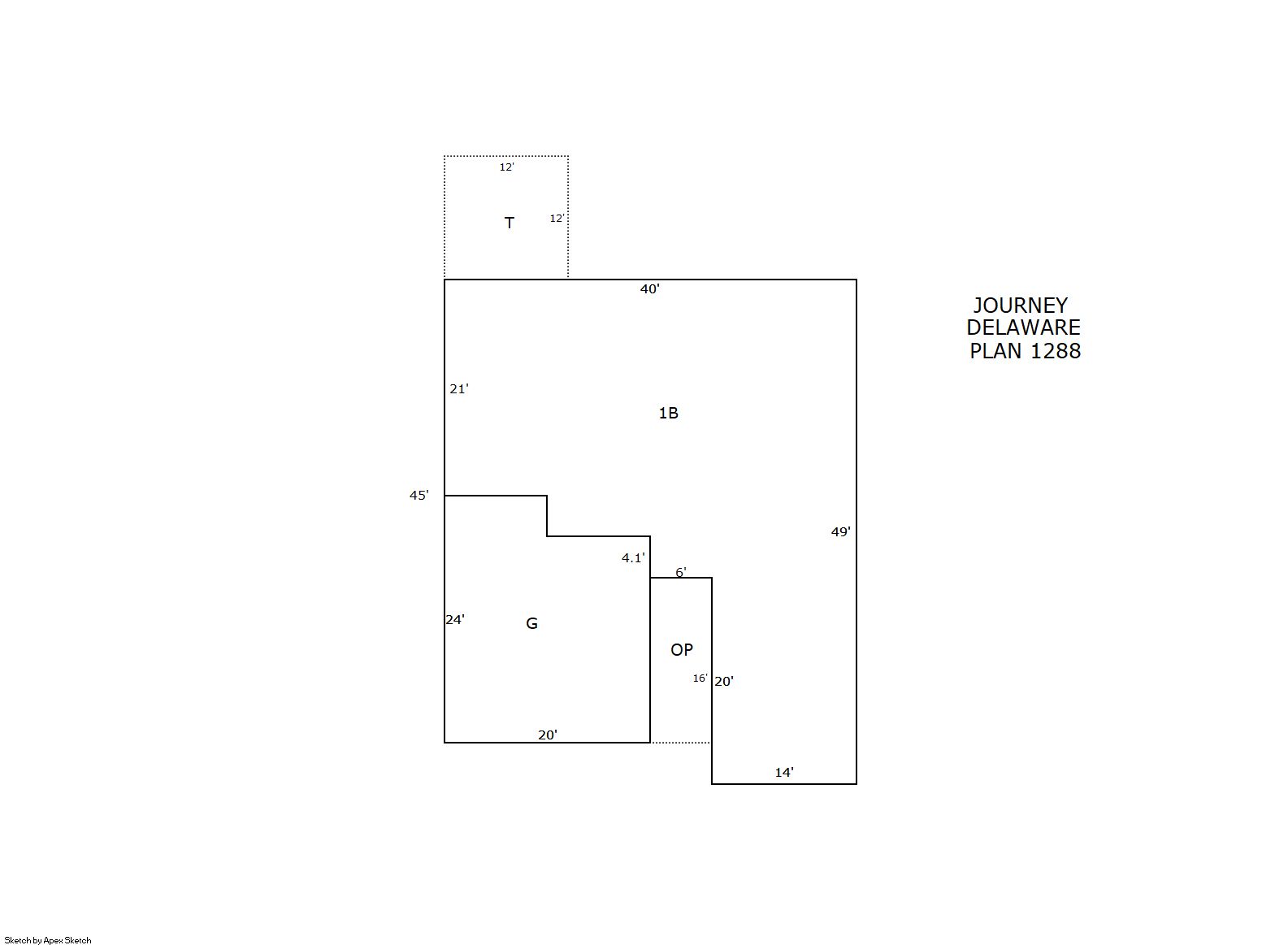
Building 1

AccountNo Building ID Occupancy
R8970512 1 Single Family Residential


ID Type NBHD Occupancy % Complete Bedrooms Baths
1 Residential 2S0051 Single Family Residential 100 2 2.00


ID Exterior Roof Cover Interior HVAC Perimeter Units Unit Type Make
1 Frame Siding Composition Shingle Drywall Central Air to Air 178 0 NA NA


ID Square Ft Condo SF Total Basement SF Finished Basement SF Garage SF Carport SF Balcony SF Porch SF
1 1,319 0 1,319 0 441 0 0 144


Built As Details for Building 1
ID Built As Square Ft Year Built Stories Length Width
1.00 Ranch 1 Story 1,319 2021 1 0 0


Additional Details for Building 1
ID Detail Type Description Units
1 Basement Total Basement SF 1319.00
1 Fixture Full Bath 2.00
1 Garage Attached 441.00
1 Porch Open Slab 144.00
1 Porch Slab Roof Ceil 96.00
1 Rough In Rough In 1.00





Account Parcel Account Type Tax Year Buildings Actual Value Local Govt Assessed Value School Assessed Value
R8970512 080702263003 Residential 2026 1 430,846 26,930 30,380

Type Code Description Actual Value Local Govt Assessed Value School Assessed Value Acres Land SqFt
Improvement 1212 SINGLE FAMILY RESIDENTIAL IMPROVEMENTS 335,846 20,990 23,680 0.000 0
Land 1112 SINGLE FAMILY RESIDENTIAL-LAND 95,000 5,940 6,700 0.120 5,221
Totals - - 430,846 26,930 30,380 0.120 5,221


Account Parcel Account Type Tax Year Buildings Actual Value Local Govt Assessed Value School Assessed Value
R8970512 080702263003 Residential 2026 1 430,846 26,930 30,380

Tax Area District ID District Name Local Govt
Mill Levy
School
Mill Levy
Estimated
Taxes
5671 0700 AIMS JUNIOR COLLEGE 6.313 0.000 $170.01
5671 1051 CLEARVIEW LIBRARY 3.546 0.000 $95.49
5671 1601 HUNTERS OVERLOOK MD 7 75.369 0.000 $2,029.69
5671 0304 NORTH WELD COUNTY WATER (NWC) 0.000 0.000 $0.00
5671 0301 NORTHERN COLORADO WATER (NCW) 1.000 0.000 $26.93
5671 0204 SCHOOL DIST RE4-WINDSOR 0.000 46.646 $1,417.11
5671 0427 SEVERANCE TOWN 12.635 0.000 $340.26
5671 0100 WELD COUNTY 15.956 0.000 $429.70
5671 1200 WEST GREELEY CONSERVATION 0.414 0.000 $11.15
5671 0521 WINDSOR-SEVERANCE FIRE 8.535 0.000 $229.85
Total - - 123.768 46.646 $4,750.18


The estimate of tax is based on the prior year mill levy and the 2025 projected assessment rates. Mill levies and tax estimates will be updated yearly on December 22nd for the current year. Additional information can be found at https://assessor.weld.gov










Select Reports to Print: