Account: R8971159
April 4, 2026
| Account | Parcel | Account Type | Tax Year | Buildings | Actual Value | Local Govt Assessed Value | School Assessed Value |
|---|---|---|---|---|---|---|---|
| R8971159 | 147105317009 | Residential | 2026 | 1 | 430,839 | 26,930 | 30,380 |
| Legal |
|---|
| Lot 9 Block 4 LUPTON VILLAGE PUD |
| Subdivision | Block | Lot | Land Economic Area |
|---|---|---|---|
| LUPTON VILLAGE PUD | 4 | 9 | LUPTON VILLAGE PUD |
| Property Address | Property City | Section | Township | Range |
|---|---|---|---|---|
| 506 BONNEVILLE AVE | FORT LUPTON | 05 | 01 | 66 |
| Account | Parcel | Account Type | Tax Year | Buildings | Actual Value | Local Govt Assessed Value | School Assessed Value |
|---|---|---|---|---|---|---|---|
| R8971159 | 147105317009 | Residential | 2026 | 1 | 430,839 | 26,930 | 30,380 |
| Account | Owner Name | Address |
|---|---|---|
| R8971159 | BARNARD JOSEPH | 506 BONNEVILLE AVE FORT LUPTON, CO 806212761 |
| R8971159 | BARNARD ALEXANDRIA |
| Account | Parcel | Account Type | Tax Year | Buildings | Actual Value | Local Govt Assessed Value | School Assessed Value |
|---|---|---|---|---|---|---|---|
| R8971159 | 147105317009 | Residential | 2026 | 1 | 430,839 | 26,930 | 30,380 |
| Reception | Rec Date | Type | Grantor | Grantee | Doc Fee | Sale Date | Sale Price |
|---|---|---|---|---|---|---|---|
| 4684462 | 02-19-2021 | PLT | LUPTON VILLAGE PUD | LUPTON VILLAGE PUD | 0.00 | 02-09-2021 | 0 |
| 4685810 | 02-24-2021 | AFFD | LUPTON VILLAGE PUD | LUPTON VILLAGE PUD | 0.00 | 02-23-2021 | 0 |
| 4688204 | 03-02-2021 | PLT | LUPTON VILLAGE PUD | LUPTON VILLAGE PUD | 0.00 | 02-25-2021 | 0 |
| 4688892 | 03-03-2021 | SWD | FORT LUPTON 110 LLP | FTL LAND ASSEMBLAGE LLLP | 169.07 | 02-25-2021 | 1,690,700 |
| 4689290 | 03-04-2021 | SWD | FTL LAND ASSEMBLAGE LLLP | LUPTON VILLAGE LAND DEVELOPERS LLC | 297.00 | 03-01-2021 | 2,970,000 |
| 4746435 | 08-16-2021 | SWD | LUPTON VILLAGE LAND DEVELOPERS LLC | BAESSLER RESIDENTIAL COLORADO LLC | 387.00 | 08-13-2021 | 3,870,000 |
| 4860999 | 10-13-2022 | SWD | BAESSLER RESIDENTIAL COLORADO LLC | BARNARD JOSEPH; BARNARD ALEXANDRIA | 45.71 | 10-13-2022 | 457,100 |
*If the hyperlink for the reception number does not work, try a manual search in the Clerk and Recorder records. Use the Grantor or Grantee in your search.
| Account | Parcel | Account Type | Tax Year | Buildings | Actual Value | Local Govt Assessed Value | School Assessed Value |
|---|---|---|---|---|---|---|---|
| R8971159 | 147105317009 | Residential | 2026 | 1 | 430,839 | 26,930 | 30,380 |
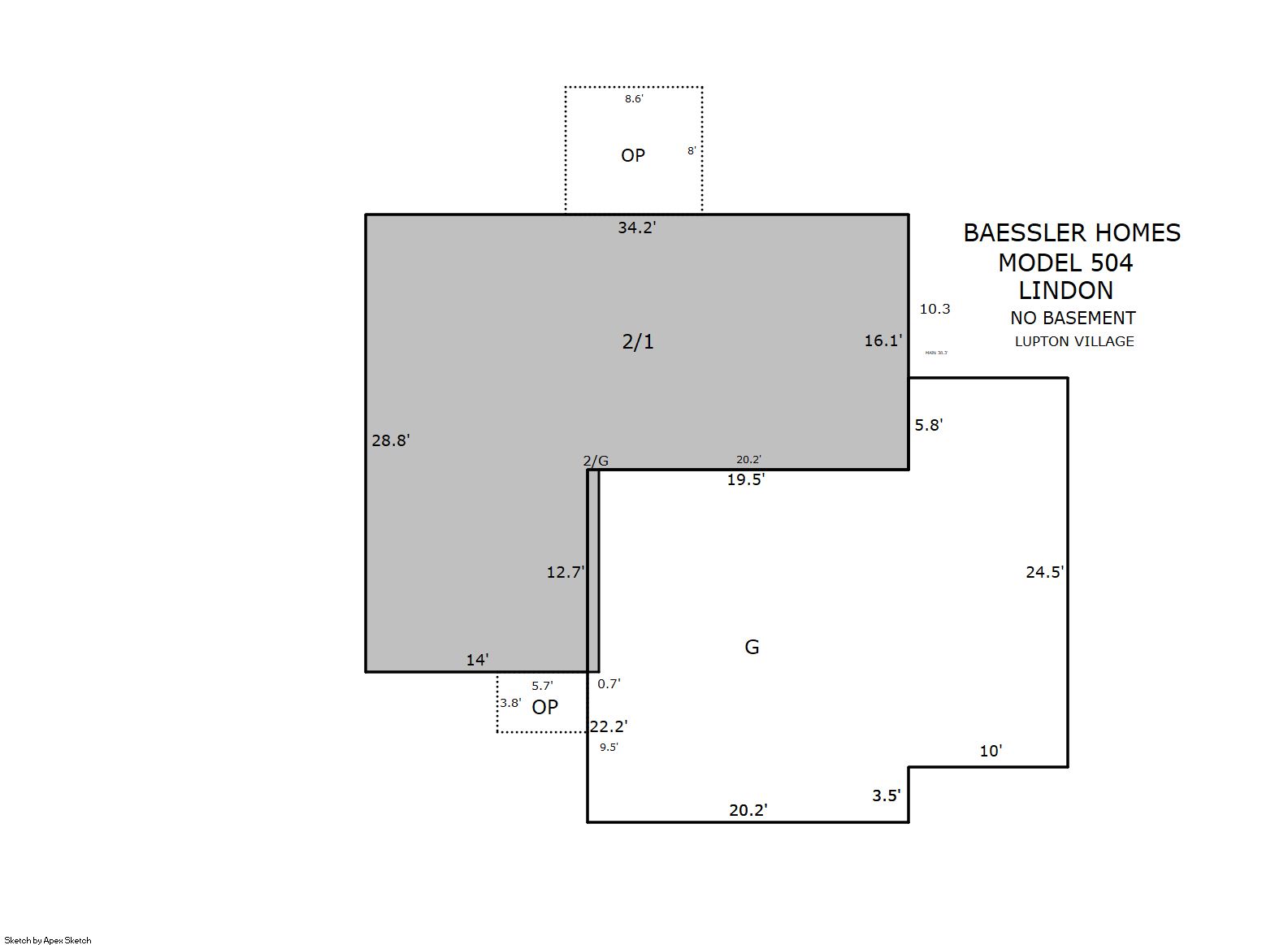
Building 1
| AccountNo | Building ID | Occupancy |
|---|---|---|
| R8971159 | 1 | Single Family Residential |
| ID | Type | NBHD | Occupancy | % Complete | Bedrooms | Baths |
|---|---|---|---|---|---|---|
| 1 | Residential | 4F0009 | Single Family Residential | 100 | 3 | 3.00 |
| ID | Exterior | Roof Cover | Interior | HVAC | Perimeter | Units | Unit Type | Make |
|---|---|---|---|---|---|---|---|---|
| 1 | Frame Siding | Composition Shingle | Drywall | Forced Air | 252 | 0 | NA | NA |
| ID | Square Ft | Condo SF | Total Basement SF | Finished Basement SF | Garage SF | Carport SF | Balcony SF | Porch SF |
|---|---|---|---|---|---|---|---|---|
| 1 | 1,465 | 0 | 0 | 0 | 693 | 0 | 0 | 91 |
| ID | Built As | Square Ft | Year Built | Stories | Length | Width |
|---|---|---|---|---|---|---|
| 1.00 | 2 Story | 1,465 | 2022 | 2 | 0 | 0 |
| ID | Detail Type | Description | Units |
|---|---|---|---|
| 1 | Fixture | Full Bath | 2.00 |
| 1 | Fixture | Half Bath | 1.00 |
| 1 | Garage | Attached | 693.00 |
| 1 | Porch | Slab Roof Ceil | 91.00 |
| Account | Parcel | Account Type | Tax Year | Buildings | Actual Value | Local Govt Assessed Value | School Assessed Value |
|---|---|---|---|---|---|---|---|
| R8971159 | 147105317009 | Residential | 2026 | 1 | 430,839 | 26,930 | 30,380 |
| Type | Code | Description | Actual Value | Local Govt Assessed Value | School Assessed Value | Acres | Land SqFt |
|---|---|---|---|---|---|---|---|
| Improvement | 1212 | SINGLE FAMILY RESIDENTIAL IMPROVEMENTS | 340,839 | 21,300 | 24,030 | 0.000 | 0 |
| Land | 1112 | SINGLE FAMILY RESIDENTIAL-LAND | 90,000 | 5,630 | 6,350 | 0.156 | 6,805 |
| Totals | - | - | 430,839 | 26,930 | 30,380 | 0.156 | 6,805 |
Comparable sales for your Residential or Commercial property may be found using our SALES SEARCH TOOL
Values are updated annually on May 1st for Real Property and June 15th for Personal Property and Oil and Gas.
| Account | Parcel | Account Type | Tax Year | Buildings | Actual Value | Local Govt Assessed Value | School Assessed Value |
|---|---|---|---|---|---|---|---|
| R8971159 | 147105317009 | Residential | 2026 | 1 | 430,839 | 26,930 | 30,380 |
| Tax Area | District ID | District Name | Local Govt Mill Levy |
School Mill Levy |
Estimated Taxes |
|---|---|---|---|---|---|
| 6210 | 0700 | AIMS JUNIOR COLLEGE | 6.313 | 0.000 | $170.01 |
| 6210 | 0302 | CENTRAL COLORADO WATER (CCW) | 0.980 | 0.000 | $26.39 |
| 6210 | 0309 | CENTRAL COLORADO WATER SUBDISTRICT (CCS) | 1.462 | 0.000 | $39.37 |
| 6210 | 0407 | FORT LUPTON CITY | 42.931 | 0.000 | $1,156.13 |
| 6210 | 0506 | FORT LUPTON FIRE | 9.357 | 0.000 | $251.98 |
| 6210 | 1050 | HIGH PLAINS LIBRARY | 3.044 | 0.000 | $81.97 |
| 6210 | 1398 | LUPTON VILLAGE RESIDENTIAL METRO DISTRICT | 78.730 | 0.000 | $2,120.20 |
| 6210 | 0301 | NORTHERN COLORADO WATER (NCW) | 1.000 | 0.000 | $26.93 |
| 6210 | 0208 | SCHOOL DIST RE8-FORT LUPTON AND DACONO | 0.000 | 18.198 | $552.86 |
| 6210 | 0100 | WELD COUNTY | 15.956 | 0.000 | $429.70 |
| Total | - | - | 159.773 | 18.198 | $4,855.54 |
The estimate of tax is based on the prior year mill levy and the 2025 projected assessment rates. Mill levies and tax estimates will be updated yearly on December 22nd for the current year. Additional information can be found at https://assessor.weld.gov


