Account: R8971798
April 4, 2026
| Account | Parcel | Account Type | Tax Year | Buildings | Actual Value | Local Govt Assessed Value | School Assessed Value |
|---|---|---|---|---|---|---|---|
| R8971798 | 070711463025 | Residential | 2026 | 1 | 429,089 | 26,820 | 30,250 |
| Legal |
|---|
| Lot 25 Block 4 CONESTOGA 1ST FG 6TH RPLT |
| Subdivision | Block | Lot | Land Economic Area |
|---|---|---|---|
| CONESTOGA 1ST FG 6TH RPLT | 4 | 25 | CONESTOGA |
| Property Address | Property City | Section | Township | Range |
|---|---|---|---|---|
| 608 APEX TRL | AULT | 11 | 07 | 66 |
| Account | Parcel | Account Type | Tax Year | Buildings | Actual Value | Local Govt Assessed Value | School Assessed Value |
|---|---|---|---|---|---|---|---|
| R8971798 | 070711463025 | Residential | 2026 | 1 | 429,089 | 26,820 | 30,250 |
| Account | Owner Name | Address |
|---|---|---|
| R8971798 | VECA SHELBY D | 608 APEX TRL AULT, CO 806108912 |
| Account | Parcel | Account Type | Tax Year | Buildings | Actual Value | Local Govt Assessed Value | School Assessed Value |
|---|---|---|---|---|---|---|---|
| R8971798 | 070711463025 | Residential | 2026 | 1 | 429,089 | 26,820 | 30,250 |
| Reception | Rec Date | Type | Grantor | Grantee | Doc Fee | Sale Date | Sale Price |
|---|---|---|---|---|---|---|---|
| 4702399 | 04-08-2021 | PLT | CONESTOGA SUB 1ST FG 6TH RPLT | CONESTOGA SUB 1ST FG 6TH RPLT | 0.00 | 03-12-2021 | 0 |
| 4727125 | 06-18-2021 | SWD | CONESTOGA DEVELOPERS COMPANY LLC | BAESSLER RESIDENTIAL COLORADO LLC | 262.50 | 06-17-2021 | 2,625,000 |
| 4794187 | 01-14-2022 | SWD | BAESSLER RESIDENTIAL COLORADO LLC | SILERIO JESUS S SOLIS; VECA SHELBY D | 38.40 | 01-14-2022 | 384,000 |
| 4927282 | 10-24-2023 | QCN | SILERIO JESUS S SOLIS; VECA SHELBY D | VECA SHELBY D | 0.00 | 10-19-2023 | 0 |
*If the hyperlink for the reception number does not work, try a manual search in the Clerk and Recorder records. Use the Grantor or Grantee in your search.
| Account | Parcel | Account Type | Tax Year | Buildings | Actual Value | Local Govt Assessed Value | School Assessed Value |
|---|---|---|---|---|---|---|---|
| R8971798 | 070711463025 | Residential | 2026 | 1 | 429,089 | 26,820 | 30,250 |
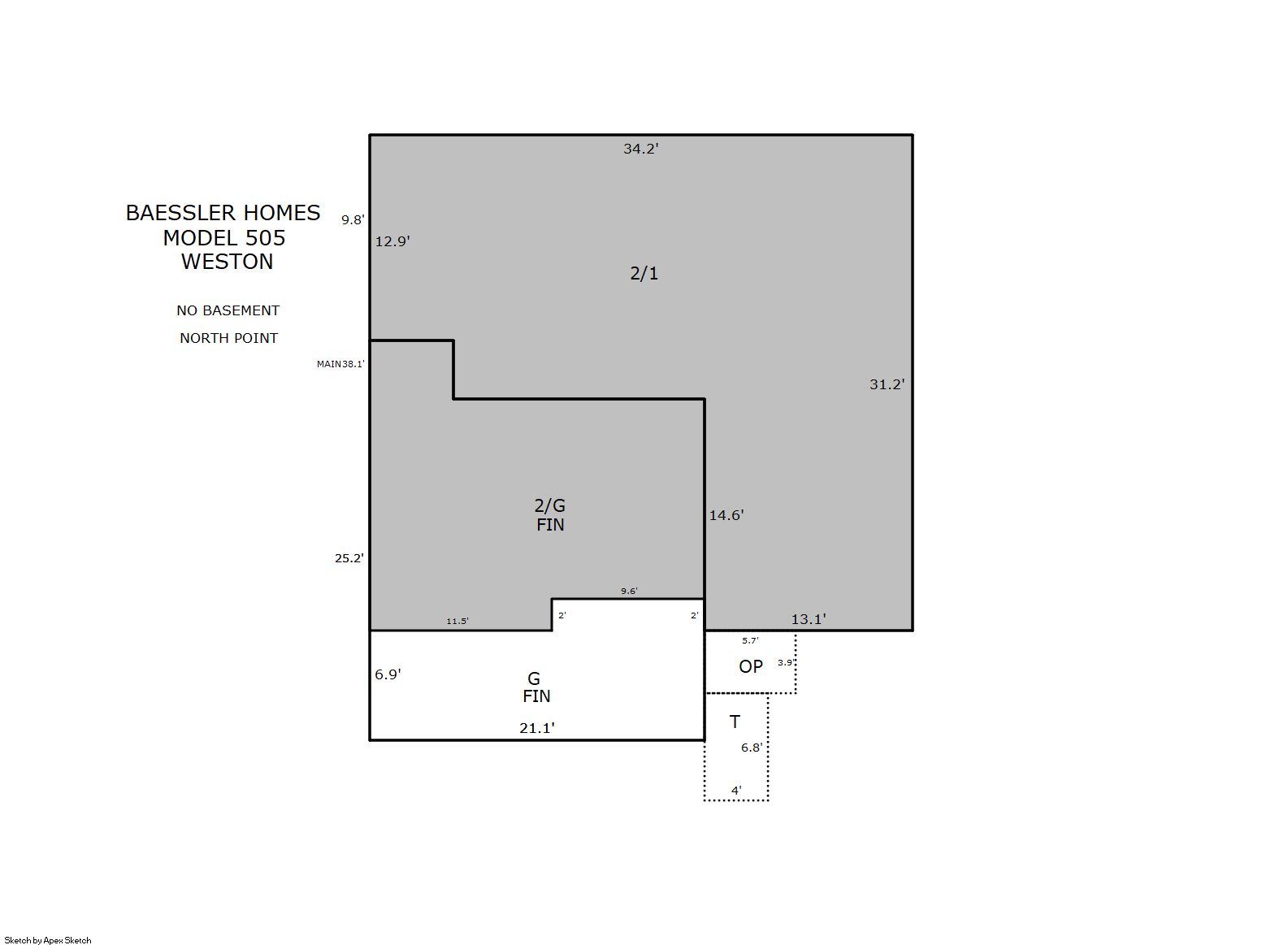
Building 1
| AccountNo | Building ID | Occupancy |
|---|---|---|
| R8971798 | 1 | Single Family Residential |
| ID | Type | NBHD | Occupancy | % Complete | Bedrooms | Baths |
|---|---|---|---|---|---|---|
| 1 | Residential | 9A0040 | Single Family Residential | 100 | 4 | 3.00 |
| ID | Exterior | Roof Cover | Interior | HVAC | Perimeter | Units | Unit Type | Make |
|---|---|---|---|---|---|---|---|---|
| 1 | Frame Siding | Composition Shingle | Drywall | Central Air to Air | 266 | 0 | NA | NA |
| ID | Square Ft | Condo SF | Total Basement SF | Finished Basement SF | Garage SF | Carport SF | Balcony SF | Porch SF |
|---|---|---|---|---|---|---|---|---|
| 1 | 1,787 | 0 | 0 | 0 | 473 | 0 | 0 | 27 |
| ID | Built As | Square Ft | Year Built | Stories | Length | Width |
|---|---|---|---|---|---|---|
| 1.00 | 2 Story | 1,787 | 2021 | 2 | 0 | 0 |
| ID | Detail Type | Description | Units |
|---|---|---|---|
| 1 | Fixture | Full Bath | 2.00 |
| 1 | Fixture | Half Bath | 1.00 |
| 1 | Garage | Attached | 473.00 |
| 1 | Porch | Open Slab | 27.00 |
| 1 | Porch | Slab Roof Ceil | 22.00 |
| Account | Parcel | Account Type | Tax Year | Buildings | Actual Value | Local Govt Assessed Value | School Assessed Value |
|---|---|---|---|---|---|---|---|
| R8971798 | 070711463025 | Residential | 2026 | 1 | 429,089 | 26,820 | 30,250 |
| Type | Code | Description | Actual Value | Local Govt Assessed Value | School Assessed Value | Acres | Land SqFt |
|---|---|---|---|---|---|---|---|
| Improvement | 1212 | SINGLE FAMILY RESIDENTIAL IMPROVEMENTS | 373,889 | 23,370 | 26,360 | 0.000 | 0 |
| Land | 1112 | SINGLE FAMILY RESIDENTIAL-LAND | 55,200 | 3,450 | 3,890 | 0.128 | 5,578 |
| Totals | - | - | 429,089 | 26,820 | 30,250 | 0.128 | 5,578 |
Comparable sales for your Residential or Commercial property may be found using our SALES SEARCH TOOL
Values are updated annually on May 1st for Real Property and June 15th for Personal Property and Oil and Gas.
| Account | Parcel | Account Type | Tax Year | Buildings | Actual Value | Local Govt Assessed Value | School Assessed Value |
|---|---|---|---|---|---|---|---|
| R8971798 | 070711463025 | Residential | 2026 | 1 | 429,089 | 26,820 | 30,250 |
| Tax Area | District ID | District Name | Local Govt Mill Levy |
School Mill Levy |
Estimated Taxes |
|---|---|---|---|---|---|
| 6491 | 0700 | AIMS JUNIOR COLLEGE | 6.313 | 0.000 | $169.31 |
| 6491 | 0501 | AULT FIRE | 7.266 | 0.000 | $194.87 |
| 6491 | 0401 | AULT TOWN | 6.741 | 0.000 | $180.79 |
| 6491 | 1582 | CONESTOGA METRO DISTRICT 3 | 60.124 | 0.000 | $1,612.53 |
| 6491 | 1050 | HIGH PLAINS LIBRARY | 3.044 | 0.000 | $81.64 |
| 6491 | 0301 | NORTHERN COLORADO WATER (NCW) | 1.000 | 0.000 | $26.82 |
| 6491 | 0209 | SCHOOL DIST RE9-AULT | 0.000 | 34.176 | $1,033.82 |
| 6491 | 0100 | WELD COUNTY | 15.956 | 0.000 | $427.94 |
| 6491 | 1200 | WEST GREELEY CONSERVATION | 0.414 | 0.000 | $11.10 |
| Total | - | - | 100.858 | 34.176 | $3,738.84 |
The estimate of tax is based on the prior year mill levy and the 2025 projected assessment rates. Mill levies and tax estimates will be updated yearly on December 22nd for the current year. Additional information can be found at https://assessor.weld.gov


