Account: R8972023
April 1, 2026
| Account | Parcel | Account Type | Tax Year | Buildings | Actual Value | Local Govt Assessed Value | School Assessed Value |
|---|---|---|---|---|---|---|---|
| R8972023 | 146932300001 | Residential | 2026 | 1 | 920,756 | 57,550 | 64,920 |
| Legal |
|---|
| PT SW4 32-1-67 LOT A FAMILY FARM DIV FFD21-0002 |
| Subdivision | Block | Lot | Land Economic Area |
|---|---|---|---|
| DACONO RURAL |
| Property Address | Property City | Section | Township | Range |
|---|---|---|---|---|
| 94 COUNTY ROAD 15 | WELD | 32 | 01 | 67 |
| Account | Parcel | Account Type | Tax Year | Buildings | Actual Value | Local Govt Assessed Value | School Assessed Value |
|---|---|---|---|---|---|---|---|
| R8972023 | 146932300001 | Residential | 2026 | 1 | 920,756 | 57,550 | 64,920 |
| Account | Owner Name | Address |
|---|---|---|
| R8972023 | JACOBUCCI P FAMILY TRUST | 94 COUNTY ROAD 15 BRIGHTON, CO 806038973 |
| R8972023 | JACOBUCCI J FAMILY TRUST |
| Account | Parcel | Account Type | Tax Year | Buildings | Actual Value | Local Govt Assessed Value | School Assessed Value |
|---|---|---|---|---|---|---|---|
| R8972023 | 146932300001 | Residential | 2026 | 1 | 920,756 | 57,550 | 64,920 |
| Reception | Rec Date | Type | Grantor | Grantee | Doc Fee | Sale Date | Sale Price |
|---|---|---|---|---|---|---|---|
| 4706323 | 04-19-2021 | RE | FAMILY FARM DIV FFD21-0002 | FAMILY FARM DIV FFD21-0002 | 0.00 | 04-09-2021 | 0 |
| 4730042 | 06-28-2021 | DN | JACOBUCCI PAUL J | JACOBUCCI P FAMILY TRUST; JACOBUCCI J FAMILY TRUST | 0.00 | 06-28-2021 | 0 |
| 4862438 | 10-20-2022 | DN | JACOBUCCI PAUL J | P AND J JACOBUCCI FAMILY TRUST | 0.00 | 10-19-2022 | 0 |
*If the hyperlink for the reception number does not work, try a manual search in the Clerk and Recorder records. Use the Grantor or Grantee in your search.
| Account | Parcel | Account Type | Tax Year | Buildings | Actual Value | Local Govt Assessed Value | School Assessed Value |
|---|---|---|---|---|---|---|---|
| R8972023 | 146932300001 | Residential | 2026 | 1 | 920,756 | 57,550 | 64,920 |
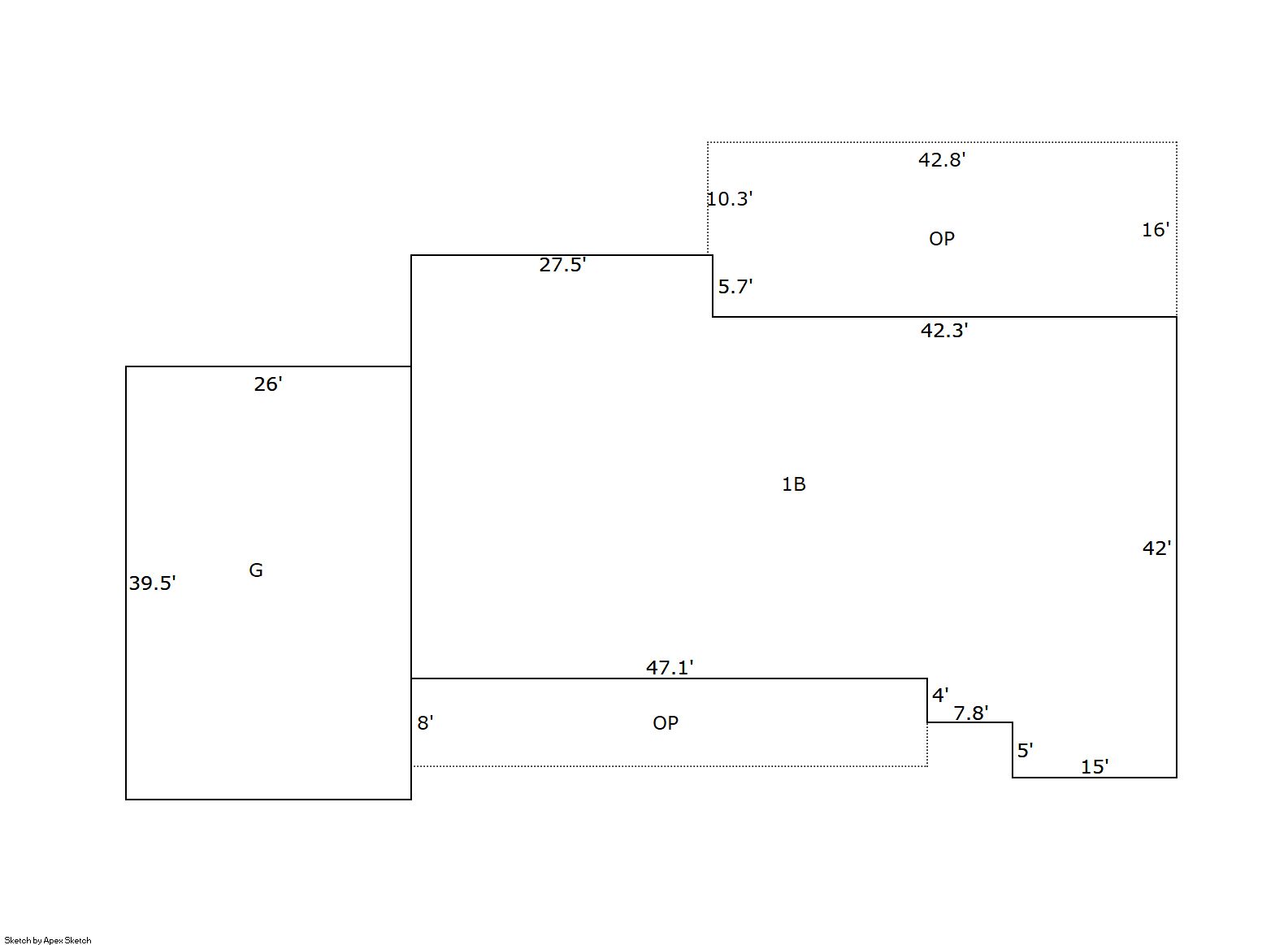
Building 1
| AccountNo | Building ID | Occupancy |
|---|---|---|
| R8972023 | 1 | Single Family Residential |
| ID | Type | NBHD | Occupancy | % Complete | Bedrooms | Baths |
|---|---|---|---|---|---|---|
| 1 | Residential | 3R2001 | Single Family Residential | 100 | 2 | 3.00 |
| ID | Exterior | Roof Cover | Interior | HVAC | Perimeter | Units | Unit Type | Make |
|---|---|---|---|---|---|---|---|---|
| 1 | Frame Stucco | Composition Shingle | Drywall | Central Air to Air | 235 | 0 | NA | NA |
| ID | Square Ft | Condo SF | Total Basement SF | Finished Basement SF | Garage SF | Carport SF | Balcony SF | Porch SF |
|---|---|---|---|---|---|---|---|---|
| 1 | 2,627 | 0 | 2,627 | 0 | 1,027 | 0 | 0 | 1058 |
| ID | Built As | Square Ft | Year Built | Stories | Length | Width |
|---|---|---|---|---|---|---|
| 1.00 | Ranch 1 Story | 2,627 | 2017 | 1 | 0 | 0 |
| ID | Detail Type | Description | Units |
|---|---|---|---|
| 1 | Add On | Fireplace Gas | 1.00 |
| 1 | Basement | Total Basement SF | 2627.00 |
| 1 | Fixture | Full Bath | 3.00 |
| 1 | Garage | Attached | 1027.00 |
| 1 | Porch | Slab Roof Ceil | 1058.00 |
| 1 | Rough In | Rough In | 1.00 |
| Account | Parcel | Account Type | Tax Year | Buildings | Actual Value | Local Govt Assessed Value | School Assessed Value |
|---|---|---|---|---|---|---|---|
| R8972023 | 146932300001 | Residential | 2026 | 1 | 920,756 | 57,550 | 64,920 |
| Type | Code | Description | Actual Value | Local Govt Assessed Value | School Assessed Value | Acres | Land SqFt |
|---|---|---|---|---|---|---|---|
| Improvement | 1212 | SINGLE FAMILY RESIDENTIAL IMPROVEMENTS | 693,709 | 43,360 | 48,910 | 0.000 | 0 |
| Land | 1112 | SINGLE FAMILY RESIDENTIAL-LAND | 227,047 | 14,190 | 16,010 | 3.364 | 146,536 |
| Totals | - | - | 920,756 | 57,550 | 64,920 | 3.364 | 146,536 |
Comparable sales for your Residential or Commercial property may be found using our SALES SEARCH TOOL
Values are updated annually on May 1st for Real Property and June 15th for Personal Property and Oil and Gas.
| Account | Parcel | Account Type | Tax Year | Buildings | Actual Value | Local Govt Assessed Value | School Assessed Value |
|---|---|---|---|---|---|---|---|
| R8972023 | 146932300001 | Residential | 2026 | 1 | 920,756 | 57,550 | 64,920 |
| Tax Area | District ID | District Name | Local Govt Mill Levy |
School Mill Levy |
Estimated Taxes |
|---|---|---|---|---|---|
| 2504 | 0700 | AIMS JUNIOR COLLEGE | 6.313 | 0.000 | $363.31 |
| 2504 | 0503 | GREATER BRIGHTON FIRE | 17.504 | 0.000 | $1,007.36 |
| 2504 | 1050 | HIGH PLAINS LIBRARY | 3.044 | 0.000 | $175.18 |
| 2504 | 0208 | SCHOOL DIST RE8-FORT LUPTON AND DACONO | 0.000 | 18.198 | $1,181.41 |
| 2504 | 0100 | WELD COUNTY | 15.956 | 0.000 | $918.27 |
| 2504 | 1209 | WEST ADAMS CONSERVATION | 0.000 | 0.000 | $0.00 |
| Total | - | - | 42.817 | 18.198 | $3,645.53 |
The estimate of tax is based on the prior year mill levy and the 2025 projected assessment rates. Mill levies and tax estimates will be updated yearly on December 22nd for the current year. Additional information can be found at https://assessor.weld.gov


