Account: R8972634

April 5, 2026

Account Parcel Account Type Tax Year Buildings Actual Value Local Govt Assessed Value School Assessed Value
R8972634 079521300005 Agricultural 2026 1 263,753 16,650 18,740

Legal
N2S2SW4 21 6 61

Subdivision Block Lot Land Economic Area
NE ECON 7 RURAL

Property Address Property City Section Township Range
32208 COUNTY ROAD 89 WELD 21 06 61




Account Parcel Account Type Tax Year Buildings Actual Value Local Govt Assessed Value School Assessed Value
R8972634 079521300005 Agricultural 2026 1 263,753 16,650 18,740

Account Owner Name Address
R8972634 BELASQUEZ MICHAEL JOSEPH 32208 COUNTY ROAD 89 BRIGGSDALE, CO 806118906
R8972634 BELASQUEZ MARIA


Account Parcel Account Type Tax Year Buildings Actual Value Local Govt Assessed Value School Assessed Value
R8972634 079521300005 Agricultural 2026 1 263,753 16,650 18,740

Reception Rec Date Type Grantor Grantee Doc Fee Sale Date Sale Price
4724891 06-11-2021 QCN JENCKS FARMS INC WELCH SHARON; WELCH JAMES 0.00 06-11-2021 0
4853055 09-02-2022 WD WELCH SHARON; WELCH JAMES BELASQUEZ MICHAEL JOSEPH; BELASQUEZ MARIA 56.00 09-01-2022 560,000



Account Parcel Account Type Tax Year Buildings Actual Value Local Govt Assessed Value School Assessed Value
R8972634 079521300005 Agricultural 2026 1 263,753 16,650 18,740

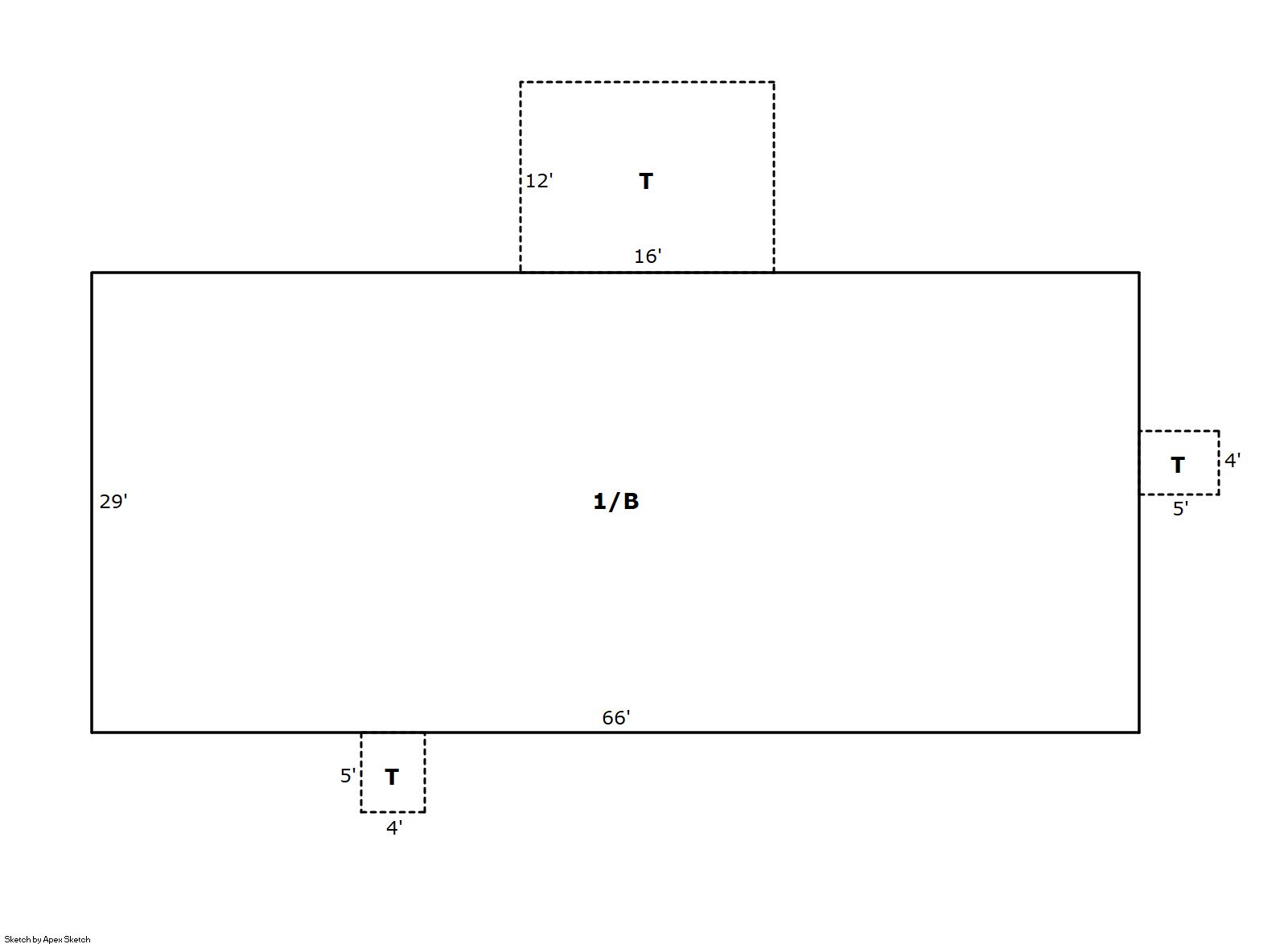
Building 1

AccountNo Building ID Occupancy
R8972634 1 Single Family Residential on Ag


ID Type NBHD Occupancy % Complete Bedrooms Baths
1 Residential 7R0001 Single Family Residential on Ag 100 3 2.00


ID Exterior Roof Cover Interior HVAC Perimeter Units Unit Type Make
1 Frame Hardboard Composition Shingle Drywall Central Air to Air 190 0 NA NA


ID Square Ft Condo SF Total Basement SF Finished Basement SF Garage SF Carport SF Balcony SF Porch SF
1 1,914 0 1,914 0 0 0 0 232


Built As Details for Building 1
ID Built As Square Ft Year Built Stories Length Width
1.00 Modular 1 Story 1,914 2020 1 0 0


Additional Details for Building 1
ID Detail Type Description Units
1 Add On Fireplace Gas 1.00
1 Basement Total Basement SF 1914.00
1 Fixture Full Bath 2.00
1 Porch Open Slab 232.00





Account Parcel Account Type Tax Year Buildings Actual Value Local Govt Assessed Value School Assessed Value
R8972634 079521300005 Agricultural 2026 1 263,753 16,650 18,740

Type Code Description Actual Value Local Govt Assessed Value School Assessed Value Acres Land SqFt
Improvement 4277 FARM/RANCH RESIDENCE-IMPS 263,009 16,440 18,540 0.000 0
Land 4147 GRAZING LAND-AGRICULTURAL 741 200 200 39.545 1,722,580
Land 4167 WASTE LAND 3 10 0 0.455 19,820
Totals - - 263,753 16,650 18,740 40.000 1,742,400


Account Parcel Account Type Tax Year Buildings Actual Value Local Govt Assessed Value School Assessed Value
R8972634 079521300005 Agricultural 2026 1 263,753 16,650 18,740

Tax Area District ID District Name Local Govt
Mill Levy
School
Mill Levy
Estimated
Taxes
1006 0700 AIMS JUNIOR COLLEGE 6.313 0.000 $105.11
1006 0524 BRIGGSDALE FIRE 4.002 0.000 $66.63
1006 1050 HIGH PLAINS LIBRARY 3.044 0.000 $50.68
1006 0210 SCHOOL DIST RE10J-BRIGGSDALE 0.000 16.616 $311.38
1006 0100 WELD COUNTY 15.956 0.000 $265.67
Total - - 29.315 16.616 $799.48


The estimate of tax is based on the prior year mill levy and the 2025 projected assessment rates. Mill levies and tax estimates will be updated yearly on December 22nd for the current year. Additional information can be found at https://assessor.weld.gov










Select Reports to Print: