Account: R8973438
April 5, 2026
| Account | Parcel | Account Type | Tax Year | Buildings | Actual Value | Local Govt Assessed Value | School Assessed Value |
|---|---|---|---|---|---|---|---|
| R8973438 | 080722336001 | Commercial | 2026 | 1 | 4,939,275 | 1,333,600 | 1,333,600 |
| Legal |
|---|
| UNIT 100 1130 DIAMOND VALLEY COMMERCIAL CONDOS |
| Subdivision | Block | Lot | Land Economic Area |
|---|---|---|---|
| 1130 DIAMOND VALLEY COMMERCIAL CONDOS | 100 | DIAMOND VALLEY |
| Property Address | Property City | Section | Township | Range |
|---|---|---|---|---|
| 1130 DIAMOND VALLEY DR 100 | WINDSOR | 22 | 06 | 67 |
| Account | Parcel | Account Type | Tax Year | Buildings | Actual Value | Local Govt Assessed Value | School Assessed Value |
|---|---|---|---|---|---|---|---|
| R8973438 | 080722336001 | Commercial | 2026 | 1 | 4,939,275 | 1,333,600 | 1,333,600 |
| Account | Owner Name | Address |
|---|---|---|
| R8973438 | ARCHER-DANIELS-MIDLAND COMPANY | 77 W WACKER DR STE 4600 CHICAGO, IL 606011667 |
| Account | Parcel | Account Type | Tax Year | Buildings | Actual Value | Local Govt Assessed Value | School Assessed Value |
|---|---|---|---|---|---|---|---|
| R8973438 | 080722336001 | Commercial | 2026 | 1 | 4,939,275 | 1,333,600 | 1,333,600 |
| Reception | Rec Date | Type | Grantor | Grantee | Doc Fee | Sale Date | Sale Price |
|---|---|---|---|---|---|---|---|
| 4739598 | 07-27-2021 | PLT | 1130 DIAMOND VALLEY COMMERCIAL CONDOS | 1130 DIAMOND VALLEY COMMERCIAL CONDOS | 0.00 | 07-22-2021 | 0 |
| 4741030 | 07-30-2021 | WD | FIVE M ENTERPRISES LLC | DIAMOND VALLEY PROPERTIES LLC | 1,725.00 | 07-22-2021 | 17,250,000 |
| 4764107 | 10-07-2021 | SWD | DIAMOND VALLEY PROPERTIES LLC | ARCHER-DANIELS-MIDLAND COMPANY | 1,683.30 | 09-28-2021 | 16,833,000 |
*If the hyperlink for the reception number does not work, try a manual search in the Clerk and Recorder records. Use the Grantor or Grantee in your search.
| Account | Parcel | Account Type | Tax Year | Buildings | Actual Value | Local Govt Assessed Value | School Assessed Value |
|---|---|---|---|---|---|---|---|
| R8973438 | 080722336001 | Commercial | 2026 | 1 | 4,939,275 | 1,333,600 | 1,333,600 |
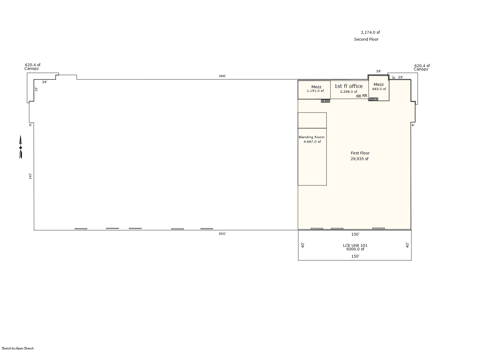
Building 1
| AccountNo | Building ID | Occupancy |
|---|---|---|
| R8973438 | 1 | Warehouse |
| ID | Type | NBHD | Occupancy | % Complete | Bedrooms | Baths |
|---|---|---|---|---|---|---|
| 1 | Condo | 2906 | Warehouse | 100 | NA | 0.00 |
| ID | Exterior | Roof Cover | Interior | HVAC | Perimeter | Units | Unit Type | Make |
|---|---|---|---|---|---|---|---|---|
| 1 | NA | NA | NA | Space Heater | 718 | 0 | NA | NA |
| ID | Square Ft | Condo SF | Total Basement SF | Finished Basement SF | Garage SF | Carport SF | Balcony SF | Porch SF |
|---|---|---|---|---|---|---|---|---|
| 1 | 29,935 | 29,935 | 0 | 0 | 0 | 0 | 0 | 0 |
| ID | Built As | Square Ft | Year Built | Stories | Length | Width |
|---|---|---|---|---|---|---|
| 1.00 | Indust Lght Manufacturing | 29,935 | 2020 | 1 | 0 | 0 |
| ID | Detail Type | Description | Units |
|---|---|---|---|
| 1 | Add On | Com Office Finish Average | 8265.00 |
| 1 | Add On | Concrete Slab Average | 6000.00 |
| 1 | Add On | Loading Wells Excavated Conc Walls & Floor | 150.00 |
| 1 | Mezzanine | Open | 2043.00 |
| Account | Parcel | Account Type | Tax Year | Buildings | Actual Value | Local Govt Assessed Value | School Assessed Value |
|---|---|---|---|---|---|---|---|
| R8973438 | 080722336001 | Commercial | 2026 | 1 | 4,939,275 | 1,333,600 | 1,333,600 |
| Type | Code | Description | Actual Value | Local Govt Assessed Value | School Assessed Value | Acres | Land SqFt |
|---|---|---|---|---|---|---|---|
| Improvement | 2245 | COMMERCIAL CONDOS | 4,939,275 | 1,333,600 | 1,333,600 | 0.000 | 0 |
| Totals | - | - | 4,939,275 | 1,333,600 | 1,333,600 | 0.000 | 0 |
Comparable sales for your Residential or Commercial property may be found using our SALES SEARCH TOOL
Values are updated annually on May 1st for Real Property and June 15th for Personal Property and Oil and Gas.
| Account | Parcel | Account Type | Tax Year | Buildings | Actual Value | Local Govt Assessed Value | School Assessed Value |
|---|---|---|---|---|---|---|---|
| R8973438 | 080722336001 | Commercial | 2026 | 1 | 4,939,275 | 1,333,600 | 1,333,600 |
| Tax Area | District ID | District Name | Local Govt Mill Levy |
School Mill Levy |
Estimated Taxes |
|---|---|---|---|---|---|
| 0436 | 0700 | AIMS JUNIOR COLLEGE | 6.313 | 0.000 | $8,419.02 |
| 0436 | 1051 | CLEARVIEW LIBRARY | 3.546 | 0.000 | $4,728.95 |
| 0436 | 0301 | NORTHERN COLORADO WATER (NCW) | 1.000 | 0.000 | $1,333.60 |
| 0436 | 0204 | SCHOOL DIST RE4-WINDSOR | 0.000 | 46.646 | $62,207.11 |
| 0436 | 0100 | WELD COUNTY | 15.956 | 0.000 | $21,278.92 |
| 0436 | 1200 | WEST GREELEY CONSERVATION | 0.414 | 0.000 | $552.11 |
| 0436 | 0428 | WINDSOR TOWN | 12.030 | 0.000 | $16,043.21 |
| 0436 | 0521 | WINDSOR-SEVERANCE FIRE | 8.535 | 0.000 | $11,382.28 |
| Total | - | - | 47.794 | 46.646 | $125,945.18 |
The estimate of tax is based on the prior year mill levy and the 2025 projected assessment rates. Mill levies and tax estimates will be updated yearly on December 22nd for the current year. Additional information can be found at https://assessor.weld.gov


