Account: R8978522
April 5, 2026
| Account | Parcel | Account Type | Tax Year | Buildings | Actual Value | Local Govt Assessed Value | School Assessed Value |
|---|---|---|---|---|---|---|---|
| R8978522 | 105907403013 | Residential | 2026 | 1 | 521,818 | 32,620 | 36,790 |
| Legal |
|---|
| Lot 13 Block 3 GRANARY FILING ONE |
| Subdivision | Block | Lot | Land Economic Area |
|---|---|---|---|
| GRANARY FILING ONE | 3 | 13 | GRANARY SUB FG 1 |
| Property Address | Property City | Section | Township | Range |
|---|---|---|---|---|
| 675 PIEDMONTESE ST | JOHNSTOWN | 07 | 04 | 67 |
| Account | Parcel | Account Type | Tax Year | Buildings | Actual Value | Local Govt Assessed Value | School Assessed Value |
|---|---|---|---|---|---|---|---|
| R8978522 | 105907403013 | Residential | 2026 | 1 | 521,818 | 32,620 | 36,790 |
| Account | Owner Name | Address |
|---|---|---|
| R8978522 | NINEFELDT JULIA B | 675 PIEDMONTESE ST JOHNSTOWN, CO 805341017 |
| Account | Parcel | Account Type | Tax Year | Buildings | Actual Value | Local Govt Assessed Value | School Assessed Value |
|---|---|---|---|---|---|---|---|
| R8978522 | 105907403013 | Residential | 2026 | 1 | 521,818 | 32,620 | 36,790 |
| Reception | Rec Date | Type | Grantor | Grantee | Doc Fee | Sale Date | Sale Price |
|---|---|---|---|---|---|---|---|
| 4827067 | 05-12-2022 | PLT | GRANARY FILING ONE | GRANARY FILING ONE | 0.00 | 04-14-2022 | 0 |
| 4830647 | 05-26-2022 | SWD | HARTFORD INVESTMENTS LLC | GRANARY DEVELOPMENT LLC | 680.00 | 05-25-2022 | 6,800,000 |
| 4873227 | 12-20-2022 | AFFD | GRANARY FILING ONE | GRANARY FILING ONE | 0.00 | 12-20-2022 | 0 |
| 4945137 | 02-20-2024 | SWDN | GRANARY DEVELOPMENT LLC | HARTFORD CONSTRUCTION LLC | 0.00 | 02-15-2024 | 0 |
| 4972432 | 07-22-2024 | SWD | HARTFORD CONSTRUCTION LLC | NINEFELDT JULIA B | 52.53 | 07-22-2024 | 525,300 |
*If the hyperlink for the reception number does not work, try a manual search in the Clerk and Recorder records. Use the Grantor or Grantee in your search.
| Account | Parcel | Account Type | Tax Year | Buildings | Actual Value | Local Govt Assessed Value | School Assessed Value |
|---|---|---|---|---|---|---|---|
| R8978522 | 105907403013 | Residential | 2026 | 1 | 521,818 | 32,620 | 36,790 |
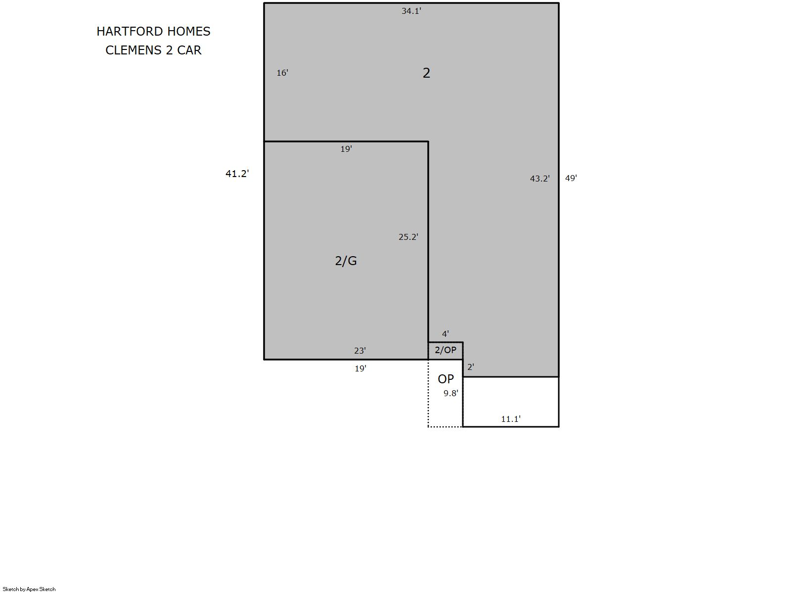
Building 1
| AccountNo | Building ID | Occupancy |
|---|---|---|
| R8978522 | 1 | Single Family Residential |
| ID | Type | NBHD | Occupancy | % Complete | Bedrooms | Baths |
|---|---|---|---|---|---|---|
| 1 | Residential | 0J0087 | Single Family Residential | 100 | 3 | 3.00 |
| ID | Exterior | Roof Cover | Interior | HVAC | Perimeter | Units | Unit Type | Make |
|---|---|---|---|---|---|---|---|---|
| 1 | Frame Siding | Composition Shingle | Drywall | Central Air to Air | 321 | 0 | NA | NA |
| ID | Square Ft | Condo SF | Total Basement SF | Finished Basement SF | Garage SF | Carport SF | Balcony SF | Porch SF |
|---|---|---|---|---|---|---|---|---|
| 1 | 2,432 | 0 | 0 | 0 | 479 | 0 | 0 | 39 |
| ID | Built As | Square Ft | Year Built | Stories | Length | Width |
|---|---|---|---|---|---|---|
| 1.00 | 2 Story | 2,432 | 2024 | 1 | 0 | 0 |
| ID | Detail Type | Description | Units |
|---|---|---|---|
| 1 | Fixture | Full Bath | 2.00 |
| 1 | Fixture | Half Bath | 1.00 |
| 1 | Garage | Attached | 479.00 |
| 1 | Porch | Slab Roof Ceil | 39.00 |
| Account | Parcel | Account Type | Tax Year | Buildings | Actual Value | Local Govt Assessed Value | School Assessed Value |
|---|---|---|---|---|---|---|---|
| R8978522 | 105907403013 | Residential | 2026 | 1 | 521,818 | 32,620 | 36,790 |
| Type | Code | Description | Actual Value | Local Govt Assessed Value | School Assessed Value | Acres | Land SqFt |
|---|---|---|---|---|---|---|---|
| Improvement | 1212 | SINGLE FAMILY RESIDENTIAL IMPROVEMENTS | 403,818 | 25,240 | 28,470 | 0.000 | 0 |
| Land | 1112 | SINGLE FAMILY RESIDENTIAL-LAND | 118,000 | 7,380 | 8,320 | 0.265 | 11,528 |
| Totals | - | - | 521,818 | 32,620 | 36,790 | 0.265 | 11,528 |
Comparable sales for your Residential or Commercial property may be found using our SALES SEARCH TOOL
Values are updated annually on May 1st for Real Property and June 15th for Personal Property and Oil and Gas.
| Account | Parcel | Account Type | Tax Year | Buildings | Actual Value | Local Govt Assessed Value | School Assessed Value |
|---|---|---|---|---|---|---|---|
| R8978522 | 105907403013 | Residential | 2026 | 1 | 521,818 | 32,620 | 36,790 |
| Tax Area | District ID | District Name | Local Govt Mill Levy |
School Mill Levy |
Estimated Taxes |
|---|---|---|---|---|---|
| 6781 | 0700 | AIMS JUNIOR COLLEGE | 6.313 | 0.000 | $205.93 |
| 6781 | 0510 | FRONT RANGE FIRE RESCUE FIRE PROTECTION DISTRICT | 11.483 | 0.000 | $374.58 |
| 6781 | 1733 | GRANARY METROPOLITAN DISTRICT NO. 2 | 44.608 | 0.000 | $1,455.11 |
| 6781 | 1740 | GRANARY METROPOLITAN DISTRICT NO. 9 | 9.391 | 0.000 | $306.33 |
| 6781 | 0414 | JOHNSTOWN TOWN | 23.947 | 0.000 | $781.15 |
| 6781 | 1206 | LARIMER CONSERVATION DISTRICT | 0.000 | 0.000 | $0.00 |
| 6781 | 0306 | LITTLE THOMPSON WATER (LTW) | 0.000 | 0.000 | $0.00 |
| 6781 | 0301 | NORTHERN COLORADO WATER (NCW) | 1.000 | 0.000 | $32.62 |
| 6781 | 0205 | SCHOOL DIST RE5J-JOHNSTOWN | 0.000 | 36.271 | $1,334.41 |
| 6781 | 0901 | THOMPSON RIVER REC | 3.594 | 0.000 | $117.24 |
| 6781 | 0100 | WELD COUNTY | 15.956 | 0.000 | $520.48 |
| Total | - | - | 116.292 | 36.271 | $5,127.86 |
The estimate of tax is based on the prior year mill levy and the 2025 projected assessment rates. Mill levies and tax estimates will be updated yearly on December 22nd for the current year. Additional information can be found at https://assessor.weld.gov


