Account: R8979470

April 1, 2026

Account Parcel Account Type Tax Year Buildings Actual Value Local Govt Assessed Value School Assessed Value
R8979470 095914430030 Residential 2026 1 391,875 24,490 27,630

Legal
Lot 30 CENTERPLACE NORTH 6TH FG

Subdivision Block Lot Land Economic Area
CENTERPLACE NORTH 6TH FG 30 CENTERPLACE NORTH

Property Address Property City Section Township Range
4125 24TH STREET RD 30 GREELEY 14 05 66




Account Parcel Account Type Tax Year Buildings Actual Value Local Govt Assessed Value School Assessed Value
R8979470 095914430030 Residential 2026 1 391,875 24,490 27,630

Account Owner Name Address
R8979470 4125 24TH ST ROAD UNIT 30 LLC 80 S 27TH AVE BRIGHTON, CO 806012602


Account Parcel Account Type Tax Year Buildings Actual Value Local Govt Assessed Value School Assessed Value
R8979470 095914430030 Residential 2026 1 391,875 24,490 27,630

Reception Rec Date Type Grantor Grantee Doc Fee Sale Date Sale Price
4858053 09-28-2022 PLT CENTERPLACE NORTH 6TH FG CENTERPLACE NORTH 6TH FG 0.00 08-10-2022 0
4888007 03-22-2023 PLT CENTERPLACE NORTH 6TH FG CENTERPLACE NORTH 6TH FG 0.00 03-20-2023 0
4893896 04-21-2023 SWD VECTOR HL LLC 4125 24TH ST ROAD UNIT 30 LLC 38.85 04-21-2023 388,500



Account Parcel Account Type Tax Year Buildings Actual Value Local Govt Assessed Value School Assessed Value
R8979470 095914430030 Residential 2026 1 391,875 24,490 27,630

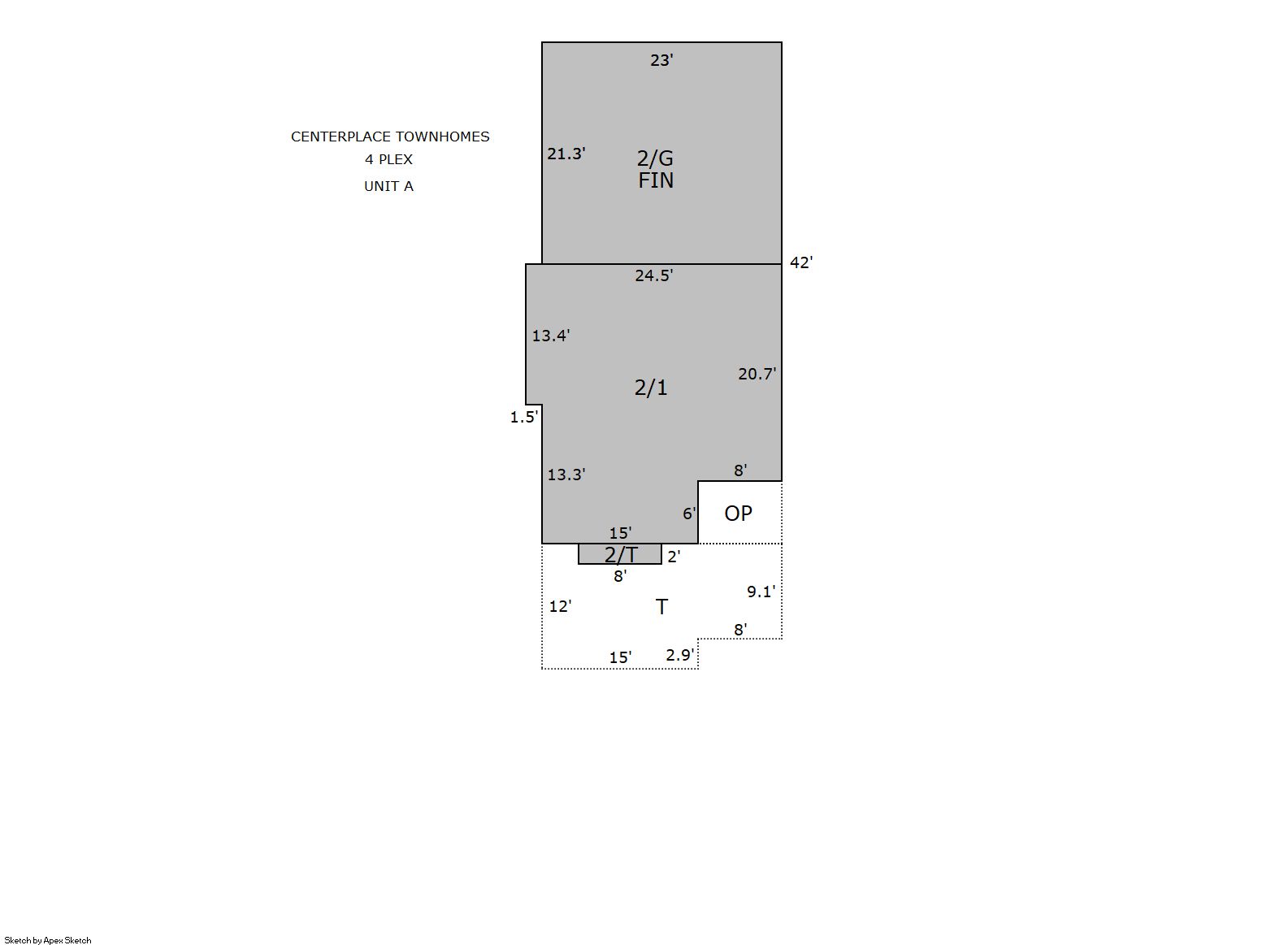
Building 1

AccountNo Building ID Occupancy
R8979470 1 Townhouse


ID Type NBHD Occupancy % Complete Bedrooms Baths
1 Townhouse 2G0091 Townhouse 100 3 3.00


ID Exterior Roof Cover Interior HVAC Perimeter Units Unit Type Make
1 Frame Siding Composition Shingle Drywall Central Air to Air 251 0 End NA


ID Square Ft Condo SF Total Basement SF Finished Basement SF Garage SF Carport SF Balcony SF Porch SF
1 1,678 0 0 0 490 0 0 253


Built As Details for Building 1
ID Built As Square Ft Year Built Stories Length Width
1.00 Townhouse Two Story 1,678 2023 2 0 0


Additional Details for Building 1
ID Detail Type Description Units
1 Fixture Full Bath 2.00
1 Fixture Half Bath 1.00
1 Garage Attached 490.00
1 Porch Open Slab 253.00
1 Porch Slab Roof Ceil 48.00





Account Parcel Account Type Tax Year Buildings Actual Value Local Govt Assessed Value School Assessed Value
R8979470 095914430030 Residential 2026 1 391,875 24,490 27,630

Type Code Description Actual Value Local Govt Assessed Value School Assessed Value Acres Land SqFt
Improvement 1212 SINGLE FAMILY RESIDENTIAL IMPROVEMENTS 336,875 21,050 23,750 0.000 0
Land 1112 SINGLE FAMILY RESIDENTIAL-LAND 55,000 3,440 3,880 0.057 2,492
Totals - - 391,875 24,490 27,630 0.057 2,492


Account Parcel Account Type Tax Year Buildings Actual Value Local Govt Assessed Value School Assessed Value
R8979470 095914430030 Residential 2026 1 391,875 24,490 27,630

Tax Area District ID District Name Local Govt
Mill Levy
School
Mill Levy
Estimated
Taxes
0683 0700 AIMS JUNIOR COLLEGE 6.313 0.000 $154.61
0683 0411 GREELEY CITY 11.274 0.000 $276.10
0683 1050 HIGH PLAINS LIBRARY 3.044 0.000 $74.55
0683 0301 NORTHERN COLORADO WATER (NCW) 1.000 0.000 $24.49
0683 0206 SCHOOL DIST 6-GREELEY 0.000 47.615 $1,315.60
0683 0100 WELD COUNTY 15.956 0.000 $390.76
0683 1200 WEST GREELEY CONSERVATION 0.414 0.000 $10.14
Total - - 38.001 47.615 $2,246.25


The estimate of tax is based on the prior year mill levy and the 2025 projected assessment rates. Mill levies and tax estimates will be updated yearly on December 22nd for the current year. Additional information can be found at https://assessor.weld.gov










Select Reports to Print: