Account: R8979737

April 1, 2026

Account Parcel Account Type Tax Year Buildings Actual Value Local Govt Assessed Value School Assessed Value
R8979737 080715432001 Residential 2026 10 14,397,660 899,850 1,015,040

Legal
Lot 1 VILLAGE EAST 10TH FG

Subdivision Block Lot Land Economic Area
VILLAGE EAST 10TH FG 1 VILLAGE EAST 8TH FG

Property Address Property City Section Township Range
840 MAPLEBROOK DR WINDSOR 15 06 67




Account Parcel Account Type Tax Year Buildings Actual Value Local Govt Assessed Value School Assessed Value
R8979737 080715432001 Residential 2026 10 14,397,660 899,850 1,015,040

Account Owner Name Address
R8979737 VILLAGE EAST HOLDINGS LLC 7251 W 20TH ST UNIT L200 GREELEY, CO 806344626


Account Parcel Account Type Tax Year Buildings Actual Value Local Govt Assessed Value School Assessed Value
R8979737 080715432001 Residential 2026 10 14,397,660 899,850 1,015,040

Reception Rec Date Type Grantor Grantee Doc Fee Sale Date Sale Price
4861900 10-18-2022 PLT VLLAGE EAST SUB 10TH FG VLLAGE EAST SUB 10TH FG 0.00 09-27-2022 0
4864878 11-02-2022 AFFD VILLAGE EAST 10TH FG VILLAGE EAST 10TH FG 0.00 11-02-2022 0
4880589 02-07-2023 SWDN VILLAGE EAST II INVESTMENTS LLC VILLAGE EAST HOLDINGS LLC 0.00 01-26-2023 0



Account Parcel Account Type Tax Year Buildings Actual Value Local Govt Assessed Value School Assessed Value
R8979737 080715432001 Residential 2026 10 14,397,660 899,850 1,015,040

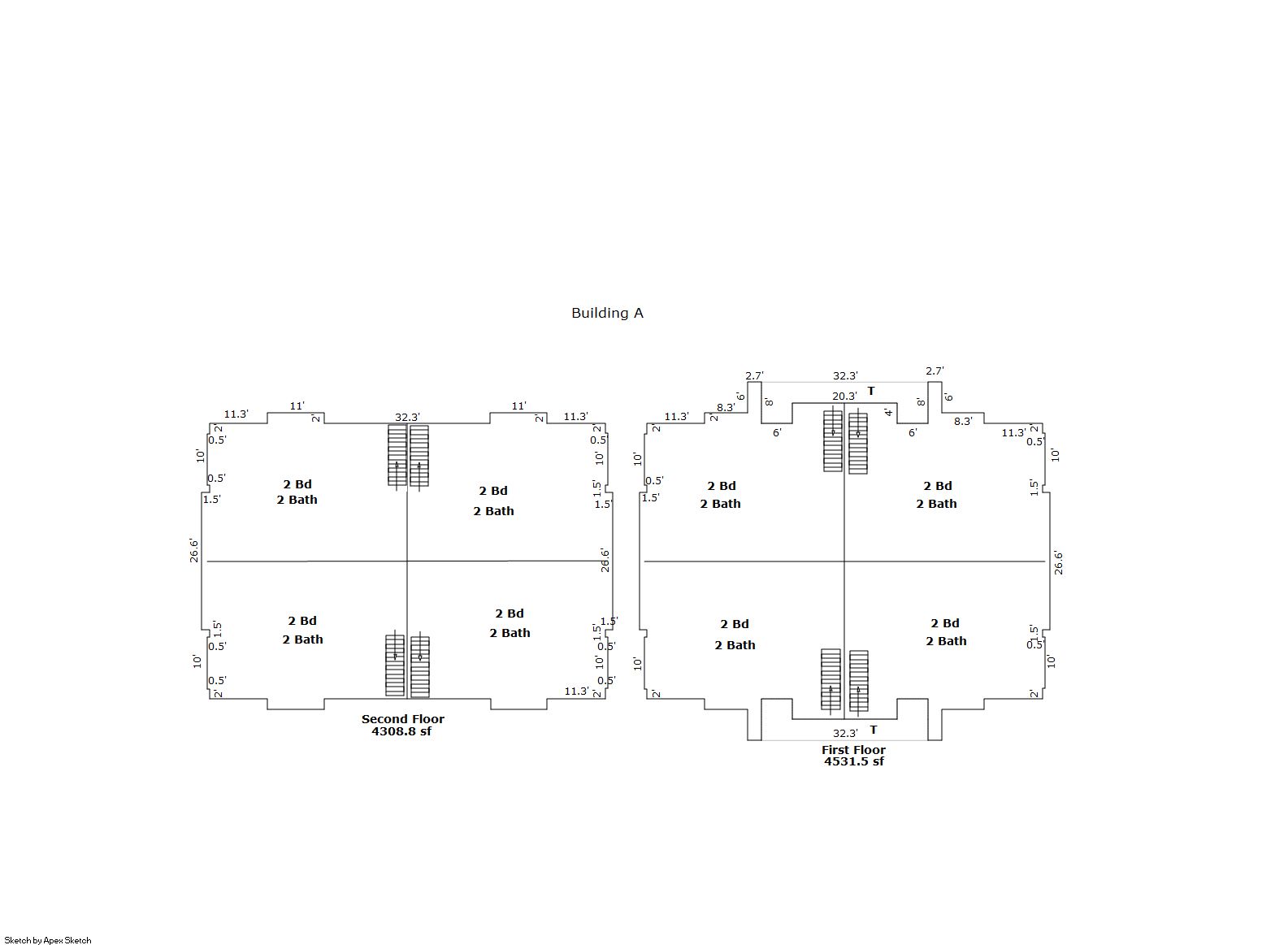
Building 1

AccountNo Building ID Occupancy
R8979737 1 Apartment w/4-8 Units - Larger Complex


ID Type NBHD Occupancy % Complete Bedrooms Baths
1 Multiple Unit 2W2007 Apartment w/4-8 Units - Larger Complex 100 16 16.00


ID Exterior Roof Cover Interior HVAC Perimeter Units Unit Type Make
1 Frame Hardboard Composition Shingle Drywall Central Air to Air 638 8 NA NA


ID Square Ft Condo SF Total Basement SF Finished Basement SF Garage SF Carport SF Balcony SF Porch SF
1 8,841 0 0 0 0 0 0 354


Built As Details for Building 1
ID Built As Square Ft Year Built Stories Length Width
1.00 Apartment <= 3 Stories 8,841 2023 2 0 0


Additional Details for Building 1
ID Detail Type Description Units
1 Add On Asphalt 4100.00
1 Add On Concrete Slab 500.00
1 Add On Sprinkler System - Fire Suppression 8841.00
1 Fixture Full Bath 16.00
1 Porch Open Slab 354.00



Building 2

AccountNo Building ID Occupancy
R8979737 2 Apartment w/4-8 Units - Larger Complex


ID Type NBHD Occupancy % Complete Bedrooms Baths
2 Multiple Unit 2W2007 Apartment w/4-8 Units - Larger Complex 100 8 8.00


ID Exterior Roof Cover Interior HVAC Perimeter Units Unit Type Make
2 Frame Hardboard Composition Shingle Drywall Central Air to Air 478 6 NA NA


ID Square Ft Condo SF Total Basement SF Finished Basement SF Garage SF Carport SF Balcony SF Porch SF
2 4,784 0 0 0 0 0 0 291


Built As Details for Building 2
ID Built As Square Ft Year Built Stories Length Width
2.00 Apartment <= 3 Stories 4,784 2023 2 0 0


Additional Details for Building 2
ID Detail Type Description Units
2 Add On Asphalt 4100.00
2 Add On Concrete Slab 500.00
2 Add On Sprinkler System - Fire Suppression 4784.00
2 Fixture Full Bath 8.00
2 Porch Cvrd Wood Deck 291.00
2 Porch Open Slab 120.00
2 Porch Slab Roof Ceil 380.00



Building 3

AccountNo Building ID Occupancy
R8979737 3 Apartment w/4-8 Units - Larger Complex


ID Type NBHD Occupancy % Complete Bedrooms Baths
3 Multiple Unit 2W2007 Apartment w/4-8 Units - Larger Complex 100 16 16.00


ID Exterior Roof Cover Interior HVAC Perimeter Units Unit Type Make
3 Frame Hardboard Composition Shingle Drywall Central Air to Air 638 8 NA NA


ID Square Ft Condo SF Total Basement SF Finished Basement SF Garage SF Carport SF Balcony SF Porch SF
3 8,841 0 0 0 0 0 0 354


Built As Details for Building 3
ID Built As Square Ft Year Built Stories Length Width
3.00 Apartment <= 3 Stories 8,841 2023 2 0 0


Additional Details for Building 3
ID Detail Type Description Units
3 Add On Asphalt 4100.00
3 Add On Concrete Slab 500.00
3 Add On Sprinkler System - Fire Suppression 8841.00
3 Fixture Full Bath 16.00
3 Porch Open Slab 354.00



Building 4

AccountNo Building ID Occupancy
R8979737 4 Apartment w/4-8 Units - Larger Complex


ID Type NBHD Occupancy % Complete Bedrooms Baths
4 Multiple Unit 2W2007 Apartment w/4-8 Units - Larger Complex 100 8 8.00


ID Exterior Roof Cover Interior HVAC Perimeter Units Unit Type Make
4 Frame Hardboard Composition Shingle Drywall Central Air to Air 478 6 NA NA


ID Square Ft Condo SF Total Basement SF Finished Basement SF Garage SF Carport SF Balcony SF Porch SF
4 4,784 0 0 0 0 0 0 120


Built As Details for Building 4
ID Built As Square Ft Year Built Stories Length Width
4.00 Apartment <= 3 Stories 4,784 2023 2 0 0


Additional Details for Building 4
ID Detail Type Description Units
4 Add On Asphalt 4100.00
4 Add On Concrete Slab 500.00
4 Add On Sprinkler System - Fire Suppression 4784.00
4 Fixture Full Bath 8.00
4 Porch Cvrd Wood Deck 291.00
4 Porch Open Slab 120.00
4 Porch Slab Roof Ceil 380.00



Building 5

AccountNo Building ID Occupancy
R8979737 5 Apartment w/4-8 Units - Larger Complex


ID Type NBHD Occupancy % Complete Bedrooms Baths
5 Multiple Unit 2W2007 Apartment w/4-8 Units - Larger Complex 100 16 16.00


ID Exterior Roof Cover Interior HVAC Perimeter Units Unit Type Make
5 Frame Hardboard Composition Shingle Drywall Central Air to Air 638 8 NA NA


ID Square Ft Condo SF Total Basement SF Finished Basement SF Garage SF Carport SF Balcony SF Porch SF
5 8,841 0 0 0 0 0 0 354


Built As Details for Building 5
ID Built As Square Ft Year Built Stories Length Width
5.00 Apartment <= 3 Stories 8,841 2023 2 0 0


Additional Details for Building 5
ID Detail Type Description Units
5 Add On Asphalt 4100.00
5 Add On Concrete Slab 500.00
5 Add On Sprinkler System - Fire Suppression 8841.00
5 Fixture Full Bath 16.00
5 Porch Open Slab 354.00



Building 6

AccountNo Building ID Occupancy
R8979737 6 Apartment w/4-8 Units - Larger Complex


ID Type NBHD Occupancy % Complete Bedrooms Baths
6 Multiple Unit 2W2007 Apartment w/4-8 Units - Larger Complex 100 16 16.00


ID Exterior Roof Cover Interior HVAC Perimeter Units Unit Type Make
6 Frame Hardboard Composition Shingle Drywall Central Air to Air 638 8 NA NA


ID Square Ft Condo SF Total Basement SF Finished Basement SF Garage SF Carport SF Balcony SF Porch SF
6 8,841 0 0 0 0 0 0 354


Built As Details for Building 6
ID Built As Square Ft Year Built Stories Length Width
6.00 Apartment <= 3 Stories 8,841 2023 2 0 0


Additional Details for Building 6
ID Detail Type Description Units
6 Add On Asphalt 4100.00
6 Add On Concrete Slab 500.00
6 Add On Sprinkler System - Fire Suppression 8841.00
6 Fixture Full Bath 16.00
6 Porch Open Slab 354.00



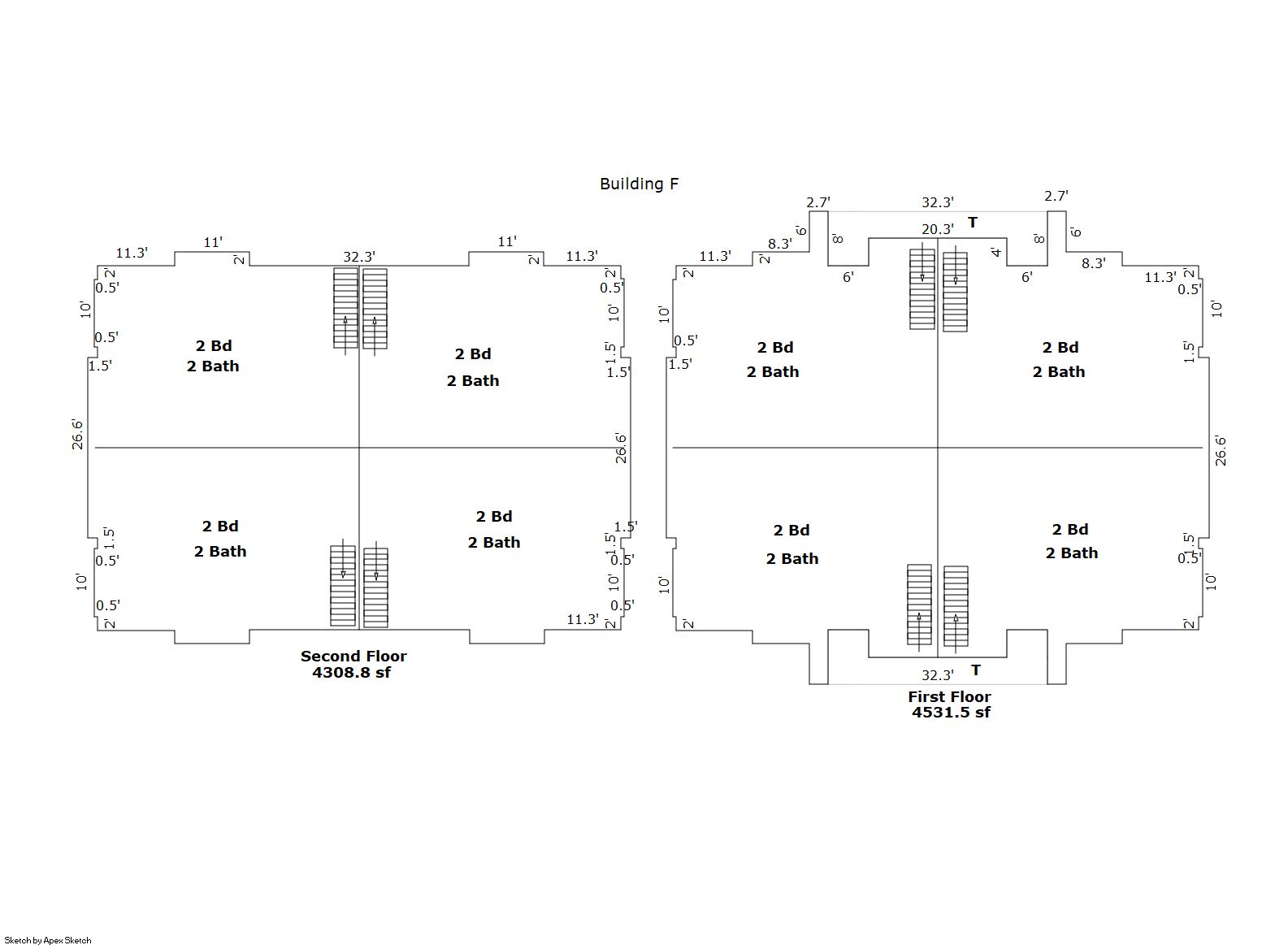
Building 7

AccountNo Building ID Occupancy
R8979737 7 Apartment w/4-8 Units - Larger Complex


ID Type NBHD Occupancy % Complete Bedrooms Baths
7 Multiple Unit 2W2007 Apartment w/4-8 Units - Larger Complex 100 8 8.00


ID Exterior Roof Cover Interior HVAC Perimeter Units Unit Type Make
7 Frame Hardboard Composition Shingle Drywall Central Air to Air 478 6 NA NA


ID Square Ft Condo SF Total Basement SF Finished Basement SF Garage SF Carport SF Balcony SF Porch SF
7 4,784 0 0 0 0 0 0 380


Built As Details for Building 7
ID Built As Square Ft Year Built Stories Length Width
7.00 Apartment <= 3 Stories 4,784 2023 2 0 0


Additional Details for Building 7
ID Detail Type Description Units
7 Add On Asphalt 4100.00
7 Add On Concrete Slab 500.00
7 Add On Sprinkler System - Fire Suppression 4784.00
7 Fixture Full Bath 8.00
7 Porch Cvrd Wood Deck 291.00
7 Porch Open Slab 120.00
7 Porch Slab Roof Ceil 380.00



Building 8

AccountNo Building ID Occupancy
R8979737 8 Apartment w/4-8 Units - Larger Complex


ID Type NBHD Occupancy % Complete Bedrooms Baths
8 Multiple Unit 2W2007 Apartment w/4-8 Units - Larger Complex 100 16 16.00


ID Exterior Roof Cover Interior HVAC Perimeter Units Unit Type Make
8 Frame Hardboard Composition Shingle Drywall Central Air to Air 638 8 NA NA


ID Square Ft Condo SF Total Basement SF Finished Basement SF Garage SF Carport SF Balcony SF Porch SF
8 8,841 0 0 0 0 0 0 354


Built As Details for Building 8
ID Built As Square Ft Year Built Stories Length Width
8.00 Apartment <= 3 Stories 8,841 2023 2 0 0


Additional Details for Building 8
ID Detail Type Description Units
8 Add On Asphalt 4100.00
8 Add On Concrete Slab 500.00
8 Add On Sprinkler System - Fire Suppression 8841.00
8 Fixture Full Bath 16.00
8 Porch Open Slab 354.00



Building 9

AccountNo Building ID Occupancy
R8979737 9 Apartment w/4-8 Units - Larger Complex


ID Type NBHD Occupancy % Complete Bedrooms Baths
9 Multiple Unit 2W2007 Apartment w/4-8 Units - Larger Complex 100 16 16.00


ID Exterior Roof Cover Interior HVAC Perimeter Units Unit Type Make
9 Frame Hardboard Composition Shingle Drywall Central Air to Air 638 8 NA NA


ID Square Ft Condo SF Total Basement SF Finished Basement SF Garage SF Carport SF Balcony SF Porch SF
9 8,841 0 0 0 0 0 0 354


Built As Details for Building 9
ID Built As Square Ft Year Built Stories Length Width
9.00 Apartment <= 3 Stories 8,841 2023 2 0 0


Additional Details for Building 9
ID Detail Type Description Units
9 Add On Asphalt 4100.00
9 Add On Concrete Slab 500.00
9 Add On Sprinkler System - Fire Suppression 8841.00
9 Fixture Full Bath 16.00
9 Porch Open Slab 354.00



Building 10

AccountNo Building ID Occupancy
R8979737 10 Apartment w/4-8 Units - Larger Complex


ID Type NBHD Occupancy % Complete Bedrooms Baths
10 Multiple Unit 2W2007 Apartment w/4-8 Units - Larger Complex 100 8 8.00


ID Exterior Roof Cover Interior HVAC Perimeter Units Unit Type Make
10 Frame Hardboard Composition Shingle Drywall Central Air to Air 478 6 NA NA


ID Square Ft Condo SF Total Basement SF Finished Basement SF Garage SF Carport SF Balcony SF Porch SF
10 4,784 0 0 0 0 0 0 291


Built As Details for Building 10
ID Built As Square Ft Year Built Stories Length Width
10.00 Apartment <= 3 Stories 4,784 2023 2 0 0


Additional Details for Building 10
ID Detail Type Description Units
10 Add On Asphalt 4100.00
10 Add On Concrete Slab 500.00
10 Add On Sprinkler System - Fire Suppression 4784.00
10 Fixture Full Bath 8.00
10 Porch Cvrd Wood Deck 291.00
10 Porch Open Slab 120.00
10 Porch Slab Roof Ceil 380.00





Account Parcel Account Type Tax Year Buildings Actual Value Local Govt Assessed Value School Assessed Value
R8979737 080715432001 Residential 2026 10 14,397,660 899,850 1,015,040

Type Code Description Actual Value Local Govt Assessed Value School Assessed Value Acres Land SqFt
Improvement 1220 MULTI-UNITS(4-8)-IMPRVMTS 13,437,660 839,850 947,360 0.000 0
Land 1120 MULTI-UNITS(4-8)-LAND 960,000 60,000 67,680 4.165 181,433
Totals - - 14,397,660 899,850 1,015,040 4.165 181,433


Account Parcel Account Type Tax Year Buildings Actual Value Local Govt Assessed Value School Assessed Value
R8979737 080715432001 Residential 2026 10 14,397,660 899,850 1,015,040

Tax Area District ID District Name Local Govt
Mill Levy
School
Mill Levy
Estimated
Taxes
6943 0700 AIMS JUNIOR COLLEGE 6.313 0.000 $5,680.75
6943 1051 CLEARVIEW LIBRARY 3.546 0.000 $3,190.87
6943 0304 NORTH WELD COUNTY WATER (NWC) 0.000 0.000 $0.00
6943 0301 NORTHERN COLORADO WATER (NCW) 1.000 0.000 $899.85
6943 0204 SCHOOL DIST RE4-WINDSOR 0.000 46.646 $47,347.56
6943 1787 VILLAGE EAST METROPOLITAN DISTRICT NO. 4 45.889 0.000 $41,293.22
6943 0100 WELD COUNTY 15.956 0.000 $14,358.01
6943 1200 WEST GREELEY CONSERVATION 0.414 0.000 $372.54
6943 0428 WINDSOR TOWN 12.030 0.000 $10,825.20
6943 0521 WINDSOR-SEVERANCE FIRE 8.535 0.000 $7,680.22
Total - - 93.683 46.646 $131,648.20


The estimate of tax is based on the prior year mill levy and the 2025 projected assessment rates. Mill levies and tax estimates will be updated yearly on December 22nd for the current year. Additional information can be found at https://assessor.weld.gov










Select Reports to Print: