Account: R8981068
April 1, 2026
| Account | Parcel | Account Type | Tax Year | Buildings | Actual Value | Local Govt Assessed Value | School Assessed Value |
|---|---|---|---|---|---|---|---|
| R8981068 | 131130306011 | Residential | 2026 | 1 | 453,533 | 28,340 | 31,970 |
| Legal |
|---|
| W38.42' L73 & W38.30' L74 & W38.19' L75 BLK G EVANS ADD EXC MINERALS & COAL AND S257' BLK2 WOLFF GARDENS EXC S120' OF W200' ALSO EXC BEG NW COR L72 BLK G EVANS ADD N89D46'E 38.53' TO TPOB N89D46'E 86.47' S00D13'E 75 S89D46'W 86.29' N00D13'W 75' TO TPOB ALSO EXC MIN RTS |
| Subdivision | Block | Lot | Land Economic Area |
|---|---|---|---|
| WOLFF GARDENS | 2 | EVANSTON |
| Property Address | Property City | Section | Township | Range |
|---|---|---|---|---|
| 512 JOHNSON ST | WELD | 30 | 02 | 67 |
| Account | Parcel | Account Type | Tax Year | Buildings | Actual Value | Local Govt Assessed Value | School Assessed Value |
|---|---|---|---|---|---|---|---|
| R8981068 | 131130306011 | Residential | 2026 | 1 | 453,533 | 28,340 | 31,970 |
| Account | Owner Name | Address |
|---|---|---|
| R8981068 | NORMAN SHARON A | PO BOX 514 FREDERICK, CO 805308032 |
| Account | Parcel | Account Type | Tax Year | Buildings | Actual Value | Local Govt Assessed Value | School Assessed Value |
|---|---|---|---|---|---|---|---|
| R8981068 | 131130306011 | Residential | 2026 | 1 | 453,533 | 28,340 | 31,970 |
| Reception | Rec Date | Type | Grantor | Grantee | Doc Fee | Sale Date | Sale Price |
|---|---|---|---|---|---|---|---|
| 123259 | 10-21-1907 | PLT | EVANS ADD | EVANS ADD | 0.00 | 09-21-1907 | 0 |
| 388794 | 09-08-1922 | PLT | WOLFF GARDENS | WOLFF GARDENS | 0.00 | 09-08-1922 | 0 |
*If the hyperlink for the reception number does not work, try a manual search in the Clerk and Recorder records. Use the Grantor or Grantee in your search.
| Account | Parcel | Account Type | Tax Year | Buildings | Actual Value | Local Govt Assessed Value | School Assessed Value |
|---|---|---|---|---|---|---|---|
| R8981068 | 131130306011 | Residential | 2026 | 1 | 453,533 | 28,340 | 31,970 |
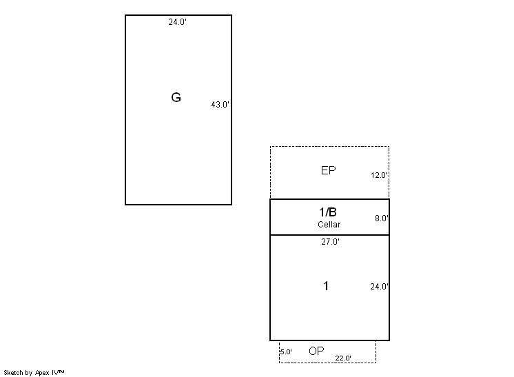
Building 1
| AccountNo | Building ID | Occupancy |
|---|---|---|
| R8981068 | 1 | Single Family Residential |
| ID | Type | NBHD | Occupancy | % Complete | Bedrooms | Baths |
|---|---|---|---|---|---|---|
| 1 | Residential | 3K0023 | Single Family Residential | 100 | 2 | 1.00 |
| ID | Exterior | Roof Cover | Interior | HVAC | Perimeter | Units | Unit Type | Make |
|---|---|---|---|---|---|---|---|---|
| 1 | Frame Masonry Veneer | Composition Shingle | Drywall | Forced Air | 0 | 0 | NA | NA |
| ID | Square Ft | Condo SF | Total Basement SF | Finished Basement SF | Garage SF | Carport SF | Balcony SF | Porch SF |
|---|---|---|---|---|---|---|---|---|
| 1 | 864 | 0 | 0 | 0 | 1,032 | 0 | 0 | 324 |
| ID | Built As | Square Ft | Year Built | Stories | Length | Width |
|---|---|---|---|---|---|---|
| 1.00 | Ranch 1 Story | 864 | 1913 | 1 | 0 | 0 |
| ID | Detail Type | Description | Units |
|---|---|---|---|
| 1 | Fixture | Full Bath | 1.00 |
| 1 | Garage | Detached | 1032.00 |
| 1 | Porch | Encl Solid Wall | 324.00 |
| 1 | Porch | Slab Roof Ceil | 110.00 |
| Account | Parcel | Account Type | Tax Year | Buildings | Actual Value | Local Govt Assessed Value | School Assessed Value |
|---|---|---|---|---|---|---|---|
| R8981068 | 131130306011 | Residential | 2026 | 1 | 453,533 | 28,340 | 31,970 |
| Type | Code | Description | Actual Value | Local Govt Assessed Value | School Assessed Value | Acres | Land SqFt |
|---|---|---|---|---|---|---|---|
| Improvement | 1212 | SINGLE FAMILY RESIDENTIAL IMPROVEMENTS | 242,152 | 15,130 | 17,070 | 0.000 | 0 |
| Land | 1112 | SINGLE FAMILY RESIDENTIAL-LAND | 211,381 | 13,210 | 14,900 | 3.300 | 143,748 |
| Totals | - | - | 453,533 | 28,340 | 31,970 | 3.300 | 143,748 |
Comparable sales for your Residential or Commercial property may be found using our SALES SEARCH TOOL
Values are updated annually on May 1st for Real Property and June 15th for Personal Property and Oil and Gas.
| Account | Parcel | Account Type | Tax Year | Buildings | Actual Value | Local Govt Assessed Value | School Assessed Value |
|---|---|---|---|---|---|---|---|
| R8981068 | 131130306011 | Residential | 2026 | 1 | 453,533 | 28,340 | 31,970 |
| Tax Area | District ID | District Name | Local Govt Mill Levy |
School Mill Levy |
Estimated Taxes |
|---|---|---|---|---|---|
| 1284 | 0900 | CARBON VALLEY REC | 4.427 | 0.000 | $125.46 |
| 1284 | 0507 | FREDERICK-FIRESTONE FIRE | 15.559 | 0.000 | $440.94 |
| 1284 | 1050 | HIGH PLAINS LIBRARY | 3.044 | 0.000 | $86.27 |
| 1284 | 0301 | NORTHERN COLORADO WATER (NCW) | 1.000 | 0.000 | $28.34 |
| 1284 | 0213 | SCHOOL DIST RE1J-LONGMONT | 0.000 | 57.717 | $1,845.21 |
| 1284 | 0620 | ST VRAIN SANITATION | 0.316 | 0.000 | $8.96 |
| 1284 | 0100 | WELD COUNTY | 15.956 | 0.000 | $452.19 |
| Total | - | - | 40.302 | 57.717 | $2,987.37 |
The estimate of tax is based on the prior year mill levy and the 2025 projected assessment rates. Mill levies and tax estimates will be updated yearly on December 22nd for the current year. Additional information can be found at https://assessor.weld.gov
- 2025 NOV

- 2024 NOV

- 2023 NOV

- 2022 (not available)
- 2021 (not available)
- 2020 (not available)
- 2019 (not available)


