Account: R8983637

April 5, 2026

Account Parcel Account Type Tax Year Buildings Actual Value Local Govt Assessed Value School Assessed Value
R8983637 130327100035 Agricultural 2026 15 561,794 87,540 90,010

Legal
PT NE4 27 2 63 LOT A LOT LINE ADJ LLA23-0011

Subdivision Block Lot Land Economic Area
ECON 5 RURAL

Property Address Property City Section Township Range
7511 COUNTY ROAD 69 WELD 27 02 63




Account Parcel Account Type Tax Year Buildings Actual Value Local Govt Assessed Value School Assessed Value
R8983637 130327100035 Agricultural 2026 15 561,794 87,540 90,010

Account Owner Name Address
R8983637 ARNUSCH LAND COMPANY LLC 33521 COUNTY ROAD 16 KEENESBURG, CO 806438812


Account Parcel Account Type Tax Year Buildings Actual Value Local Govt Assessed Value School Assessed Value
R8983637 130327100035 Agricultural 2026 15 561,794 87,540 90,010

Reception Rec Date Type Grantor Grantee Doc Fee Sale Date Sale Price
4921737 09-20-2023 PLT LLA23 0011 LLA23 0011 0.00 09-15-2023 0
4929578 11-06-2023 QCN ARNUSCH LAND COMPANY LLC ARNUSCH LAND COMPANY LLC 0.00 11-06-2023 0



Account Parcel Account Type Tax Year Buildings Actual Value Local Govt Assessed Value School Assessed Value
R8983637 130327100035 Agricultural 2026 15 561,794 87,540 90,010

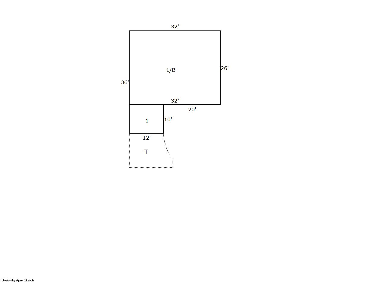
Building 1

AccountNo Building ID Occupancy
R8983637 1 Single Family Residential on Ag


ID Type NBHD Occupancy % Complete Bedrooms Baths
1 Residential 5R0006 Single Family Residential on Ag 100 2 1.00


ID Exterior Roof Cover Interior HVAC Perimeter Units Unit Type Make
1 Frame Stucco Preformed Metal Drywall Central Air to Air 136 0 NA NA


ID Square Ft Condo SF Total Basement SF Finished Basement SF Garage SF Carport SF Balcony SF Porch SF
1 952 0 832 832 0 0 0 163


Built As Details for Building 1
ID Built As Square Ft Year Built Stories Length Width
1.00 Ranch 1 Story 952 1939 1 0 0


Additional Details for Building 1
ID Detail Type Description Units
1 Add On Shed Frame 160.00
1 Basement Finished 832.00
1 Basement Total Basement SF 832.00
1 Fixture Full Bath 1.00
1 Porch Open Slab 163.00



Building 2

AccountNo Building ID Occupancy
R8983637 2 Utility Building


ID Type NBHD Occupancy % Complete Bedrooms Baths
2 Out Building NA Utility Building 100 0 0.00


ID Exterior Roof Cover Interior HVAC Perimeter Units Unit Type Make
2 NA NA NA None 108 0 NA NA


ID Square Ft Condo SF Total Basement SF Finished Basement SF Garage SF Carport SF Balcony SF Porch SF
2 680 0 0 0 0 0 0 112


Built As Details for Building 2
ID Built As Square Ft Year Built Stories Length Width
2.00 Utility Building 680 1909 1 34 20


Additional Details for Building 2
ID Detail Type Description Units
2 Porch Ceiling 112.00
2 Porch Open Slab 112.00
2 Porch Solid Wall 112.00
2 Porch Wood Roof 112.00



Building 3

AccountNo Building ID Occupancy
R8983637 3 Utility Building


ID Type NBHD Occupancy % Complete Bedrooms Baths
3 Out Building NA Utility Building 100 0 0.00


ID Exterior Roof Cover Interior HVAC Perimeter Units Unit Type Make
3 NA NA NA None 120 0 NA NA


ID Square Ft Condo SF Total Basement SF Finished Basement SF Garage SF Carport SF Balcony SF Porch SF
3 704 0 0 0 0 0 0 0


Built As Details for Building 3
ID Built As Square Ft Year Built Stories Length Width
3.00 Utility Building 704 1951 1 44 16

No Additional Details for Building 3




Building 4

AccountNo Building ID Occupancy
R8983637 4 Equipment Building


ID Type NBHD Occupancy % Complete Bedrooms Baths
4 Out Building NA Equipment Building 100 0 0.00


ID Exterior Roof Cover Interior HVAC Perimeter Units Unit Type Make
4 NA NA NA None 216 0 NA NA


ID Square Ft Condo SF Total Basement SF Finished Basement SF Garage SF Carport SF Balcony SF Porch SF
4 2,592 0 0 0 0 0 0 0


Built As Details for Building 4
ID Built As Square Ft Year Built Stories Length Width
4.00 Equipment Building 2,592 1940 1 72 36

No Additional Details for Building 4




Building 5

AccountNo Building ID Occupancy
R8983637 5 Utility Building


ID Type NBHD Occupancy % Complete Bedrooms Baths
5 Out Building NA Utility Building 100 0 0.00


ID Exterior Roof Cover Interior HVAC Perimeter Units Unit Type Make
5 NA NA NA None 104 0 NA NA


ID Square Ft Condo SF Total Basement SF Finished Basement SF Garage SF Carport SF Balcony SF Porch SF
5 640 0 0 0 0 0 0 0


Built As Details for Building 5
ID Built As Square Ft Year Built Stories Length Width
5.00 Utility Building 640 1950 1 32 20

No Additional Details for Building 5




Building 6

AccountNo Building ID Occupancy
R8983637 6 Grain Bin


ID Type NBHD Occupancy % Complete Bedrooms Baths
6 Out Building NA Grain Bin 100 0 0.00


ID Exterior Roof Cover Interior HVAC Perimeter Units Unit Type Make
6 NA NA NA None NA 0 NA NA


ID Square Ft Condo SF Total Basement SF Finished Basement SF Garage SF Carport SF Balcony SF Porch SF
6 1 0 0 0 0 0 0 0


Built As Details for Building 6
ID Built As Square Ft Year Built Stories Length Width
6.00 Grain Bin 1 1980 1 0 0

No Additional Details for Building 6




Building 7

AccountNo Building ID Occupancy
R8983637 7 Utility Building


ID Type NBHD Occupancy % Complete Bedrooms Baths
7 Out Building NA Utility Building 100 0 0.00


ID Exterior Roof Cover Interior HVAC Perimeter Units Unit Type Make
7 NA NA NA None 76 0 NA NA


ID Square Ft Condo SF Total Basement SF Finished Basement SF Garage SF Carport SF Balcony SF Porch SF
7 360 0 0 0 0 0 0 0


Built As Details for Building 7
ID Built As Square Ft Year Built Stories Length Width
7.00 Utility Building 360 1950 1 20 18

No Additional Details for Building 7




Building 8

AccountNo Building ID Occupancy
R8983637 8 Grain Bin


ID Type NBHD Occupancy % Complete Bedrooms Baths
8 Out Building NA Grain Bin 100 NA 0.00


ID Exterior Roof Cover Interior HVAC Perimeter Units Unit Type Make
8 NA NA NA NA NA 0 NA NA


ID Square Ft Condo SF Total Basement SF Finished Basement SF Garage SF Carport SF Balcony SF Porch SF
8 1 0 0 0 0 0 0 0


Built As Details for Building 8
ID Built As Square Ft Year Built Stories Length Width
8.00 Grain Bin 1 2018 1 0 0

No Additional Details for Building 8




Building 9

AccountNo Building ID Occupancy
R8983637 9 Grain Bin


ID Type NBHD Occupancy % Complete Bedrooms Baths
9 Out Building NA Grain Bin 100 0 0.00


ID Exterior Roof Cover Interior HVAC Perimeter Units Unit Type Make
9 NA NA NA None NA 0 NA NA


ID Square Ft Condo SF Total Basement SF Finished Basement SF Garage SF Carport SF Balcony SF Porch SF
9 1 0 0 0 0 0 0 0


Built As Details for Building 9
ID Built As Square Ft Year Built Stories Length Width
9.00 Grain Bin 1 2018 1 0 0

No Additional Details for Building 9




Building 10

AccountNo Building ID Occupancy
R8983637 10 Grain Bin


ID Type NBHD Occupancy % Complete Bedrooms Baths
10 Out Building NA Grain Bin 100 0 0.00


ID Exterior Roof Cover Interior HVAC Perimeter Units Unit Type Make
10 NA NA NA None NA 0 NA NA


ID Square Ft Condo SF Total Basement SF Finished Basement SF Garage SF Carport SF Balcony SF Porch SF
10 1 0 0 0 0 0 0 0


Built As Details for Building 10
ID Built As Square Ft Year Built Stories Length Width
10.00 Grain Bin 1 2018 1 0 0

No Additional Details for Building 10




Building 11

AccountNo Building ID Occupancy
R8983637 11 Grain Bin


ID Type NBHD Occupancy % Complete Bedrooms Baths
11 Out Building NA Grain Bin 100 0 0.00


ID Exterior Roof Cover Interior HVAC Perimeter Units Unit Type Make
11 NA NA NA None NA 0 NA NA


ID Square Ft Condo SF Total Basement SF Finished Basement SF Garage SF Carport SF Balcony SF Porch SF
11 1 0 0 0 0 0 0 0


Built As Details for Building 11
ID Built As Square Ft Year Built Stories Length Width
11.00 Grain Bin 1 2018 1 0 0

No Additional Details for Building 11




Building 12

AccountNo Building ID Occupancy
R8983637 12 Grain Hopper


ID Type NBHD Occupancy % Complete Bedrooms Baths
12 Out Building NA Grain Hopper 100 NA 0.00


ID Exterior Roof Cover Interior HVAC Perimeter Units Unit Type Make
12 NA NA NA NA NA 0 NA NA


ID Square Ft Condo SF Total Basement SF Finished Basement SF Garage SF Carport SF Balcony SF Porch SF
12 1 0 0 0 0 0 0 0


Built As Details for Building 12
ID Built As Square Ft Year Built Stories Length Width
12.00 Grain Hopper 1 2018 1 0 0

No Additional Details for Building 12




Building 13

AccountNo Building ID Occupancy
R8983637 13 Grain Bin


ID Type NBHD Occupancy % Complete Bedrooms Baths
13 Out Building NA Grain Bin 100 NA 0.00


ID Exterior Roof Cover Interior HVAC Perimeter Units Unit Type Make
13 NA NA NA NA NA 0 NA NA


ID Square Ft Condo SF Total Basement SF Finished Basement SF Garage SF Carport SF Balcony SF Porch SF
13 1 0 0 0 0 0 0 0


Built As Details for Building 13
ID Built As Square Ft Year Built Stories Length Width
13.00 Grain Bin 1 2020 1 0 0

No Additional Details for Building 13




Building 14

AccountNo Building ID Occupancy
R8983637 14 Grain Bin


ID Type NBHD Occupancy % Complete Bedrooms Baths
14 Out Building NA Grain Bin 100 NA 0.00


ID Exterior Roof Cover Interior HVAC Perimeter Units Unit Type Make
14 NA NA NA NA NA 0 NA NA


ID Square Ft Condo SF Total Basement SF Finished Basement SF Garage SF Carport SF Balcony SF Porch SF
14 1 0 0 0 0 0 0 0


Built As Details for Building 14
ID Built As Square Ft Year Built Stories Length Width
14.00 Grain Bin 1 2020 1 0 0

No Additional Details for Building 14




Building 15

AccountNo Building ID Occupancy
R8983637 15 Grain Bin


ID Type NBHD Occupancy % Complete Bedrooms Baths
15 Out Building NA Grain Bin 100 NA 0.00


ID Exterior Roof Cover Interior HVAC Perimeter Units Unit Type Make
15 NA NA NA NA NA 0 NA NA


ID Square Ft Condo SF Total Basement SF Finished Basement SF Garage SF Carport SF Balcony SF Porch SF
15 1 0 0 0 0 0 0 0


Built As Details for Building 15
ID Built As Square Ft Year Built Stories Length Width
15.00 Grain Bin 1 2020 1 0 0

No Additional Details for Building 15






Account Parcel Account Type Tax Year Buildings Actual Value Local Govt Assessed Value School Assessed Value
R8983637 130327100035 Agricultural 2026 15 561,794 87,540 90,010

Type Code Description Actual Value Local Govt Assessed Value School Assessed Value Acres Land SqFt
Improvement 4277 FARM/RANCH RESIDENCE-IMPS 309,161 19,320 21,800 0.000 0
Improvement 4279 FARM RANCH SUPPORT BLDGS 252,068 68,060 68,060 0.000 0
Land 4127 DRY FARM LAND-AGRICULTURAL 564 150 150 6.610 287,932
Land 4167 WASTE LAND 1 10 0 0.220 9,583
Totals - - 561,794 87,540 90,010 6.830 297,515


Account Parcel Account Type Tax Year Buildings Actual Value Local Govt Assessed Value School Assessed Value
R8983637 130327100035 Agricultural 2026 15 561,794 87,540 90,010

Tax Area District ID District Name Local Govt
Mill Levy
School
Mill Levy
Estimated
Taxes
2449 0700 AIMS JUNIOR COLLEGE 6.313 0.000 $552.64
2449 0302 CENTRAL COLORADO WATER (CCW) 0.980 0.000 $85.79
2449 1050 HIGH PLAINS LIBRARY 3.044 0.000 $266.47
2449 0308 LOST CREEK GROUNDWATER (LCGW) 0.945 0.000 $82.73
2449 0518 S. E. WELD FIRE 10.470 0.000 $916.54
2449 0203 SCHOOL DIST RE3J-KEENESBURG 0.000 15.822 $1,424.14
2449 1208 SOUTHEAST WELD CONSERVATION 0.000 0.000 $0.00
2449 0100 WELD COUNTY 15.956 0.000 $1,396.79
Total - - 37.708 15.822 $4,725.10


The estimate of tax is based on the prior year mill levy and the 2025 projected assessment rates. Mill levies and tax estimates will be updated yearly on December 22nd for the current year. Additional information can be found at https://assessor.weld.gov










Select Reports to Print: