Account: R8985680
April 5, 2026
| Account | Parcel | Account Type | Tax Year | Buildings | Actual Value | Local Govt Assessed Value | School Assessed Value |
|---|---|---|---|---|---|---|---|
| R8985680 | 105702100002 | Residential | 2026 | 2 | 628,174 | 39,260 | 44,280 |
| Legal |
|---|
| PT NE4 2-4-66 LOT B LOT LINE ADJ LLA23-0030 |
| Subdivision | Block | Lot | Land Economic Area |
|---|---|---|---|
| GREELEY RURAL |
| Property Address | Property City | Section | Township | Range |
|---|---|---|---|---|
| 02 | 04 | 66 |
| Account | Parcel | Account Type | Tax Year | Buildings | Actual Value | Local Govt Assessed Value | School Assessed Value |
|---|---|---|---|---|---|---|---|
| R8985680 | 105702100002 | Residential | 2026 | 2 | 628,174 | 39,260 | 44,280 |
| Account | Owner Name | Address |
|---|---|---|
| R8985680 | HUNZIKER BRETT W | 3171 MEADOWBROOK PL DACONO, CO 805148518 |
| R8985680 | BASDEN PAMELA E |
| Account | Parcel | Account Type | Tax Year | Buildings | Actual Value | Local Govt Assessed Value | School Assessed Value |
|---|---|---|---|---|---|---|---|
| R8985680 | 105702100002 | Residential | 2026 | 2 | 628,174 | 39,260 | 44,280 |
| Reception | Rec Date | Type | Grantor | Grantee | Doc Fee | Sale Date | Sale Price |
|---|---|---|---|---|---|---|---|
| 4952882 | 04-03-2024 | PLT | LLA23 0030 | LLA23 0030 | 0.00 | 01-31-2024 | 0 |
| 4960379 | 05-15-2024 | QCN | RED WAGON TRUST | COURSON TIMOTHY G | 0.00 | 04-10-2024 | 0 |
| 4961836 | 05-22-2024 | SWD | COURSON TIMOTHY G | HUNZIKER BRETT W; BASDEN PAMELA E | 51.00 | 05-17-2024 | 510,000 |
| 4967691 | 06-25-2024 | AFFD | LLA23 0030 | LLA23 0030 | 0.00 | 06-24-2024 | 0 |
| 4968548 | 06-28-2024 | AFFD | COURSON TIMOTHY G | HUNZIKER BRETT W; BASDEN PAMELA E | 0.00 | 06-28-2024 | 0 |
*If the hyperlink for the reception number does not work, try a manual search in the Clerk and Recorder records. Use the Grantor or Grantee in your search.
| Account | Parcel | Account Type | Tax Year | Buildings | Actual Value | Local Govt Assessed Value | School Assessed Value |
|---|---|---|---|---|---|---|---|
| R8985680 | 105702100002 | Residential | 2026 | 2 | 628,174 | 39,260 | 44,280 |
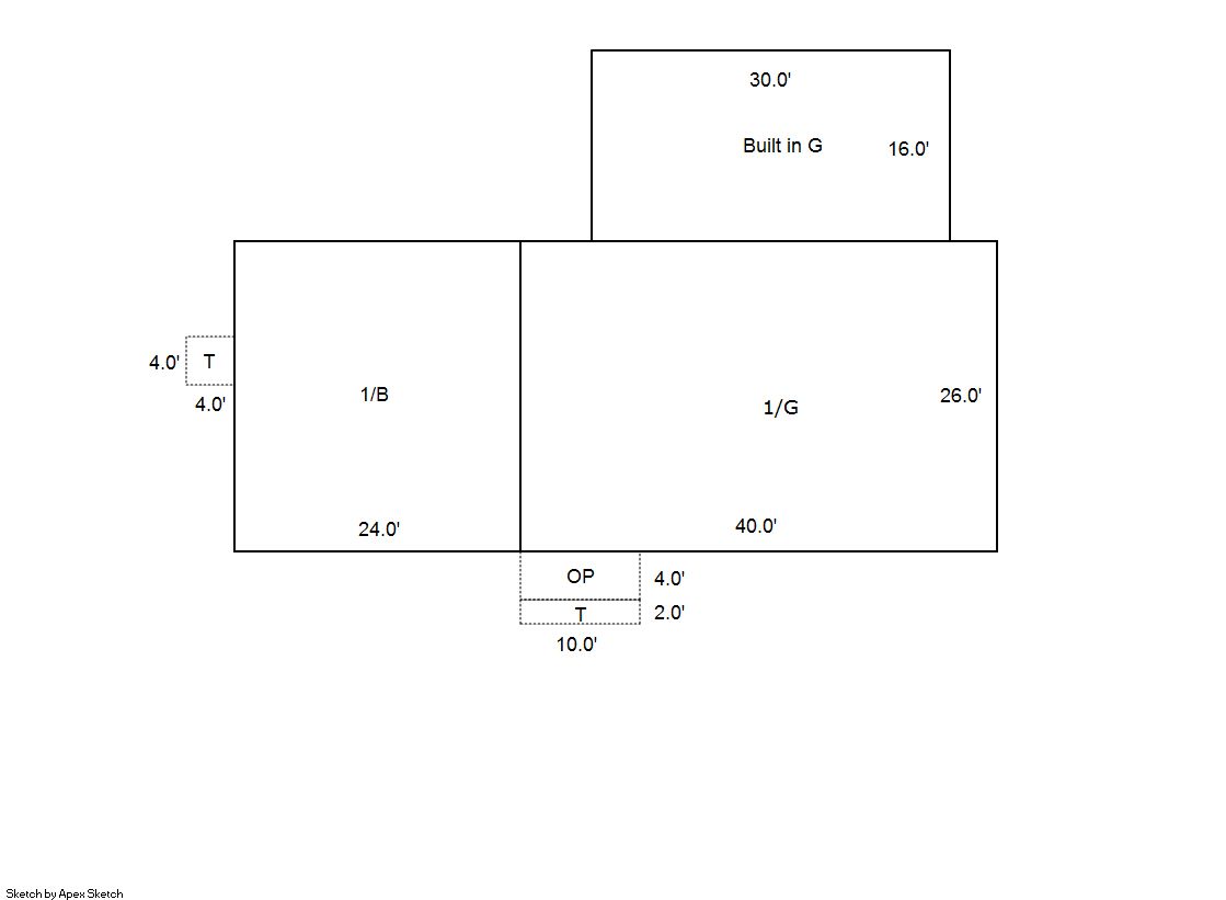
Building 1
| AccountNo | Building ID | Occupancy |
|---|---|---|
| R8985680 | 1 | Single Family Residential |
| ID | Type | NBHD | Occupancy | % Complete | Bedrooms | Baths |
|---|---|---|---|---|---|---|
| 1 | Residential | 6R3007 | Single Family Residential | 100 | 3 | 2.00 |
| ID | Exterior | Roof Cover | Interior | HVAC | Perimeter | Units | Unit Type | Make |
|---|---|---|---|---|---|---|---|---|
| 1 | Frame Hardboard | Composition Shingle | Drywall | Central Air to Air | 180 | 0 | NA | NA |
| ID | Square Ft | Condo SF | Total Basement SF | Finished Basement SF | Garage SF | Carport SF | Balcony SF | Porch SF |
|---|---|---|---|---|---|---|---|---|
| 1 | 1,664 | 0 | 1,664 | 624 | 480 | 0 | 0 | 36 |
| ID | Built As | Square Ft | Year Built | Stories | Length | Width |
|---|---|---|---|---|---|---|
| 1.00 | Ranch 1 Story | 1,664 | 1931 | 1 | 0 | 0 |
| ID | Detail Type | Description | Units |
|---|---|---|---|
| 1 | Add On | Fireplace Wood | 2.00 |
| 1 | Basement | Fair Finish | 624.00 |
| 1 | Basement | Total Basement SF | 1664.00 |
| 1 | Fixture | Full Bath | 2.00 |
| 1 | Garage | Attached | 1040.00 |
| 1 | Garage | Built In | 480.00 |
| 1 | Porch | Open Slab | 36.00 |
| 1 | Porch | Slab Roof Ceil | 40.00 |
| 1 | Storage | Wood | 132.00 |
Building 2
| AccountNo | Building ID | Occupancy |
|---|---|---|
| R8985680 | 2 | Equipment Building |
| ID | Type | NBHD | Occupancy | % Complete | Bedrooms | Baths |
|---|---|---|---|---|---|---|
| 2 | Out Building | NA | Equipment Building | 100 | NA | 0.00 |
| ID | Exterior | Roof Cover | Interior | HVAC | Perimeter | Units | Unit Type | Make |
|---|---|---|---|---|---|---|---|---|
| 2 | NA | NA | NA | None | 216 | 0 | NA | NA |
| ID | Square Ft | Condo SF | Total Basement SF | Finished Basement SF | Garage SF | Carport SF | Balcony SF | Porch SF |
|---|---|---|---|---|---|---|---|---|
| 2 | 2,592 | 0 | 0 | 0 | 0 | 0 | 0 | 0 |
| ID | Built As | Square Ft | Year Built | Stories | Length | Width |
|---|---|---|---|---|---|---|
| 2.00 | Equipment Building | 2,592 | 2025 | 1 | 72 | 36 |
No Additional Details for Building 2
| Account | Parcel | Account Type | Tax Year | Buildings | Actual Value | Local Govt Assessed Value | School Assessed Value |
|---|---|---|---|---|---|---|---|
| R8985680 | 105702100002 | Residential | 2026 | 2 | 628,174 | 39,260 | 44,280 |
| Type | Code | Description | Actual Value | Local Govt Assessed Value | School Assessed Value | Acres | Land SqFt |
|---|---|---|---|---|---|---|---|
| Improvement | 1212 | SINGLE FAMILY RESIDENTIAL IMPROVEMENTS | 463,009 | 28,940 | 32,640 | 0.000 | 0 |
| Land | 1112 | SINGLE FAMILY RESIDENTIAL-LAND | 165,165 | 10,320 | 11,640 | 3.392 | 147,756 |
| Totals | - | - | 628,174 | 39,260 | 44,280 | 3.392 | 147,756 |
Comparable sales for your Residential or Commercial property may be found using our SALES SEARCH TOOL
Values are updated annually on May 1st for Real Property and June 15th for Personal Property and Oil and Gas.
| Account | Parcel | Account Type | Tax Year | Buildings | Actual Value | Local Govt Assessed Value | School Assessed Value |
|---|---|---|---|---|---|---|---|
| R8985680 | 105702100002 | Residential | 2026 | 2 | 628,174 | 39,260 | 44,280 |
| Tax Area | District ID | District Name | Local Govt Mill Levy |
School Mill Levy |
Estimated Taxes |
|---|---|---|---|---|---|
| 0138 | 0700 | AIMS JUNIOR COLLEGE | 6.313 | 0.000 | $247.85 |
| 0138 | 0302 | CENTRAL COLORADO WATER (CCW) | 0.980 | 0.000 | $38.47 |
| 0138 | 0309 | CENTRAL COLORADO WATER SUBDISTRICT (CCS) | 1.462 | 0.000 | $57.40 |
| 0138 | 0305 | CENTRAL WELD COUNTY WATER (CWC) | 0.000 | 0.000 | $0.00 |
| 0138 | 1050 | HIGH PLAINS LIBRARY | 3.044 | 0.000 | $119.51 |
| 0138 | 0511 | LASALLE FIRE | 5.154 | 0.000 | $202.35 |
| 0138 | 0301 | NORTHERN COLORADO WATER (NCW) | 1.000 | 0.000 | $39.26 |
| 0138 | 0201 | SCHOOL DIST RE1-GILCREST | 0.000 | 15.382 | $681.11 |
| 0138 | 0100 | WELD COUNTY | 15.956 | 0.000 | $626.43 |
| 0138 | 1200 | WEST GREELEY CONSERVATION | 0.414 | 0.000 | $16.25 |
| Total | - | - | 34.323 | 15.382 | $2,028.64 |
The estimate of tax is based on the prior year mill levy and the 2025 projected assessment rates. Mill levies and tax estimates will be updated yearly on December 22nd for the current year. Additional information can be found at https://assessor.weld.gov
- 2025 NOV

- 2024 NOV

- 2023 (not available)
- 2022 (not available)
- 2021 (not available)
- 2020 (not available)
- 2019 (not available)

