Account: R8987883
April 4, 2026
| Account | Parcel | Account Type | Tax Year | Buildings | Actual Value | Local Govt Assessed Value | School Assessed Value |
|---|---|---|---|---|---|---|---|
| R8987883 | 147134416008 | Residential | 2026 | 1 | 792,775 | 49,550 | 55,890 |
| Legal |
|---|
| Lot 8 Block 5 HOMESTEAD AMD NO. 3 |
| Subdivision | Block | Lot | Land Economic Area |
|---|---|---|---|
| HOMESTEAD AMD NO. 3 | 5 | 8 | HOMESTEAD |
| Property Address | Property City | Section | Township | Range |
|---|---|---|---|---|
| 882 SPRINGHOUSE WAY | BRIGHTON | 34 | 01 | 66 |
| Account | Parcel | Account Type | Tax Year | Buildings | Actual Value | Local Govt Assessed Value | School Assessed Value |
|---|---|---|---|---|---|---|---|
| R8987883 | 147134416008 | Residential | 2026 | 1 | 792,775 | 49,550 | 55,890 |
| Account | Owner Name | Address |
|---|---|---|
| R8987883 | BREGENZER JASON THERON | 882 SPRINGHOUSE WAY BRIGHTON, CO 806035962 |
| R8987883 | BREGENZER JENNIFER RAE |
| Account | Parcel | Account Type | Tax Year | Buildings | Actual Value | Local Govt Assessed Value | School Assessed Value |
|---|---|---|---|---|---|---|---|
| R8987883 | 147134416008 | Residential | 2026 | 1 | 792,775 | 49,550 | 55,890 |
| Reception | Rec Date | Type | Grantor | Grantee | Doc Fee | Sale Date | Sale Price |
|---|---|---|---|---|---|---|---|
| 4883785 | 02-27-2023 | SWD | RICHFIELD HOMES LLC | BREGENZER JUSTIN THERON; BREGENZER JENNIFER RAE | 81.37 | 02-23-2023 | 813,700 |
| 4974029 | 07-31-2024 | PLT | HOMESTEAD AMD NO 3 | HOMESTEAD AMD NO 3 | 0.00 | 06-21-2024 | 0 |
*If the hyperlink for the reception number does not work, try a manual search in the Clerk and Recorder records. Use the Grantor or Grantee in your search.
| Account | Parcel | Account Type | Tax Year | Buildings | Actual Value | Local Govt Assessed Value | School Assessed Value |
|---|---|---|---|---|---|---|---|
| R8987883 | 147134416008 | Residential | 2026 | 1 | 792,775 | 49,550 | 55,890 |
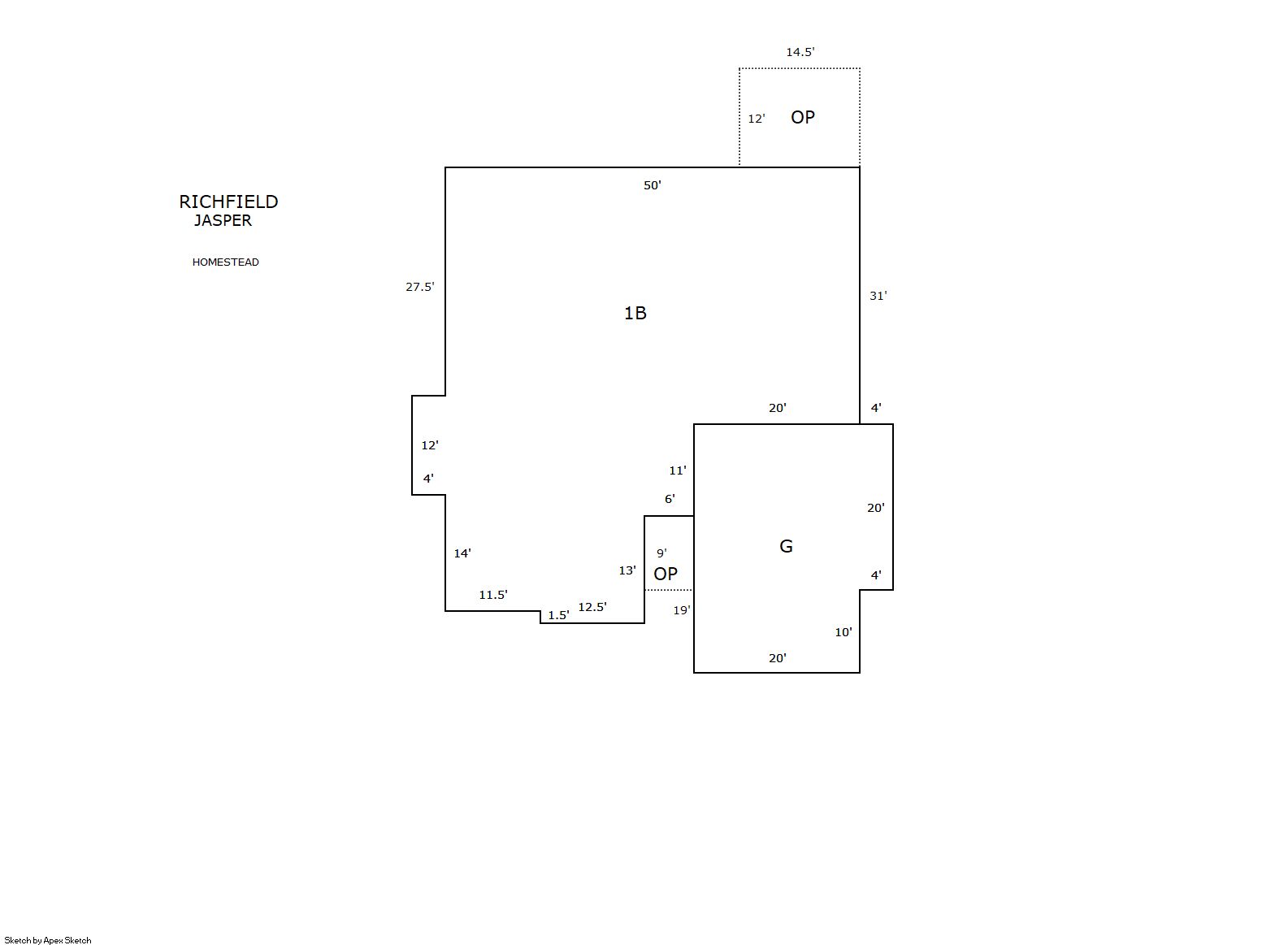
Building 1
| AccountNo | Building ID | Occupancy |
|---|---|---|
| R8987883 | 1 | Single Family Residential |
| ID | Type | NBHD | Occupancy | % Complete | Bedrooms | Baths |
|---|---|---|---|---|---|---|
| 1 | Residential | 4L2005 | Single Family Residential | 100 | 3 | 3.00 |
| ID | Exterior | Roof Cover | Interior | HVAC | Perimeter | Units | Unit Type | Make |
|---|---|---|---|---|---|---|---|---|
| 1 | Frame Siding | Composition Shingle | Drywall | Central Air to Air | 218 | 0 | NA | NA |
| ID | Square Ft | Condo SF | Total Basement SF | Finished Basement SF | Garage SF | Carport SF | Balcony SF | Porch SF |
|---|---|---|---|---|---|---|---|---|
| 1 | 2,223 | 0 | 2,223 | 0 | 680 | 0 | 0 | 228 |
| ID | Built As | Square Ft | Year Built | Stories | Length | Width |
|---|---|---|---|---|---|---|
| 1.00 | Ranch 1 Story | 2,223 | 2022 | 1 | 0 | 0 |
| ID | Detail Type | Description | Units |
|---|---|---|---|
| 1 | Basement | Total Basement SF | 2223.00 |
| 1 | Fixture | Full Bath | 2.00 |
| 1 | Fixture | Half Bath | 1.00 |
| 1 | Garage | Attached | 680.00 |
| 1 | Porch | Slab Roof Ceil | 228.00 |
| 1 | Rough In | Rough In | 1.00 |
| Account | Parcel | Account Type | Tax Year | Buildings | Actual Value | Local Govt Assessed Value | School Assessed Value |
|---|---|---|---|---|---|---|---|
| R8987883 | 147134416008 | Residential | 2026 | 1 | 792,775 | 49,550 | 55,890 |
| Type | Code | Description | Actual Value | Local Govt Assessed Value | School Assessed Value | Acres | Land SqFt |
|---|---|---|---|---|---|---|---|
| Improvement | 1212 | SINGLE FAMILY RESIDENTIAL IMPROVEMENTS | 652,775 | 40,800 | 46,020 | 0.000 | 0 |
| Land | 1112 | SINGLE FAMILY RESIDENTIAL-LAND | 140,000 | 8,750 | 9,870 | 0.459 | 20,011 |
| Totals | - | - | 792,775 | 49,550 | 55,890 | 0.459 | 20,011 |
Comparable sales for your Residential or Commercial property may be found using our SALES SEARCH TOOL
Values are updated annually on May 1st for Real Property and June 15th for Personal Property and Oil and Gas.
| Account | Parcel | Account Type | Tax Year | Buildings | Actual Value | Local Govt Assessed Value | School Assessed Value |
|---|---|---|---|---|---|---|---|
| R8987883 | 147134416008 | Residential | 2026 | 1 | 792,775 | 49,550 | 55,890 |
| Tax Area | District ID | District Name | Local Govt Mill Levy |
School Mill Levy |
Estimated Taxes |
|---|---|---|---|---|---|
| 2782 | 0429 | BRIGHTON TOWN | 6.650 | 0.000 | $329.51 |
| 2782 | 1342 | BROMLEY PARK METRO 2 | 54.500 | 0.000 | $2,700.48 |
| 2782 | 0302 | CENTRAL COLORADO WATER (CCW) | 0.980 | 0.000 | $48.56 |
| 2782 | 0309 | CENTRAL COLORADO WATER SUBDISTRICT (CCS) | 1.462 | 0.000 | $72.44 |
| 2782 | 0503 | GREATER BRIGHTON FIRE | 17.504 | 0.000 | $867.32 |
| 2782 | 1050 | HIGH PLAINS LIBRARY | 3.044 | 0.000 | $150.83 |
| 2782 | 0216 | SCHOOL DIST 27J-BRIGHTON | 0.000 | 56.290 | $3,146.05 |
| 2782 | 0100 | WELD COUNTY | 15.956 | 0.000 | $790.62 |
| Total | - | - | 100.096 | 56.29 | $8,105.80 |
The estimate of tax is based on the prior year mill levy and the 2025 projected assessment rates. Mill levies and tax estimates will be updated yearly on December 22nd for the current year. Additional information can be found at https://assessor.weld.gov
- 2025 NOV

- 2024 (not available)
- 2023 (not available)
- 2022 (not available)
- 2021 (not available)
- 2020 (not available)
- 2019 (not available)

