Account: R8990406
April 1, 2026
| Account | Parcel | Account Type | Tax Year | Buildings | Actual Value | Local Govt Assessed Value | School Assessed Value |
|---|---|---|---|---|---|---|---|
| R8990406 | 080106107001 | Residential | 2026 | 1 | 486,212 | 30,380 | 34,280 |
| Legal |
|---|
| Lot 1 ZITA 1ST ADD RES24-0009 |
| Subdivision | Block | Lot | Land Economic Area |
|---|---|---|---|
| ZITA 1ST ADD RES24-0009 | 1 | GALETON |
| Property Address | Property City | Section | Township | Range |
|---|---|---|---|---|
| 35896 PLEASANT HILL AVE | GALETON | 06 | 06 | 64 |
| Account | Parcel | Account Type | Tax Year | Buildings | Actual Value | Local Govt Assessed Value | School Assessed Value |
|---|---|---|---|---|---|---|---|
| R8990406 | 080106107001 | Residential | 2026 | 1 | 486,212 | 30,380 | 34,280 |
| Account | Owner Name | Address |
|---|---|---|
| R8990406 | GCD INVESTMENTS LLC | PO BOX 336291 GREELEY, CO 806330605 |
| Account | Parcel | Account Type | Tax Year | Buildings | Actual Value | Local Govt Assessed Value | School Assessed Value |
|---|---|---|---|---|---|---|---|
| R8990406 | 080106107001 | Residential | 2026 | 1 | 486,212 | 30,380 | 34,280 |
| Reception | Rec Date | Type | Grantor | Grantee | Doc Fee | Sale Date | Sale Price |
|---|---|---|---|---|---|---|---|
| 5012148 | 02-20-2025 | PLT | ZITA 1ST ADD RES24-0009 | ZITA 1ST ADD RES24-0009 | 0.00 | 02-03-2025 | 0 |
*If the hyperlink for the reception number does not work, try a manual search in the Clerk and Recorder records. Use the Grantor or Grantee in your search.
| Account | Parcel | Account Type | Tax Year | Buildings | Actual Value | Local Govt Assessed Value | School Assessed Value |
|---|---|---|---|---|---|---|---|
| R8990406 | 080106107001 | Residential | 2026 | 1 | 486,212 | 30,380 | 34,280 |
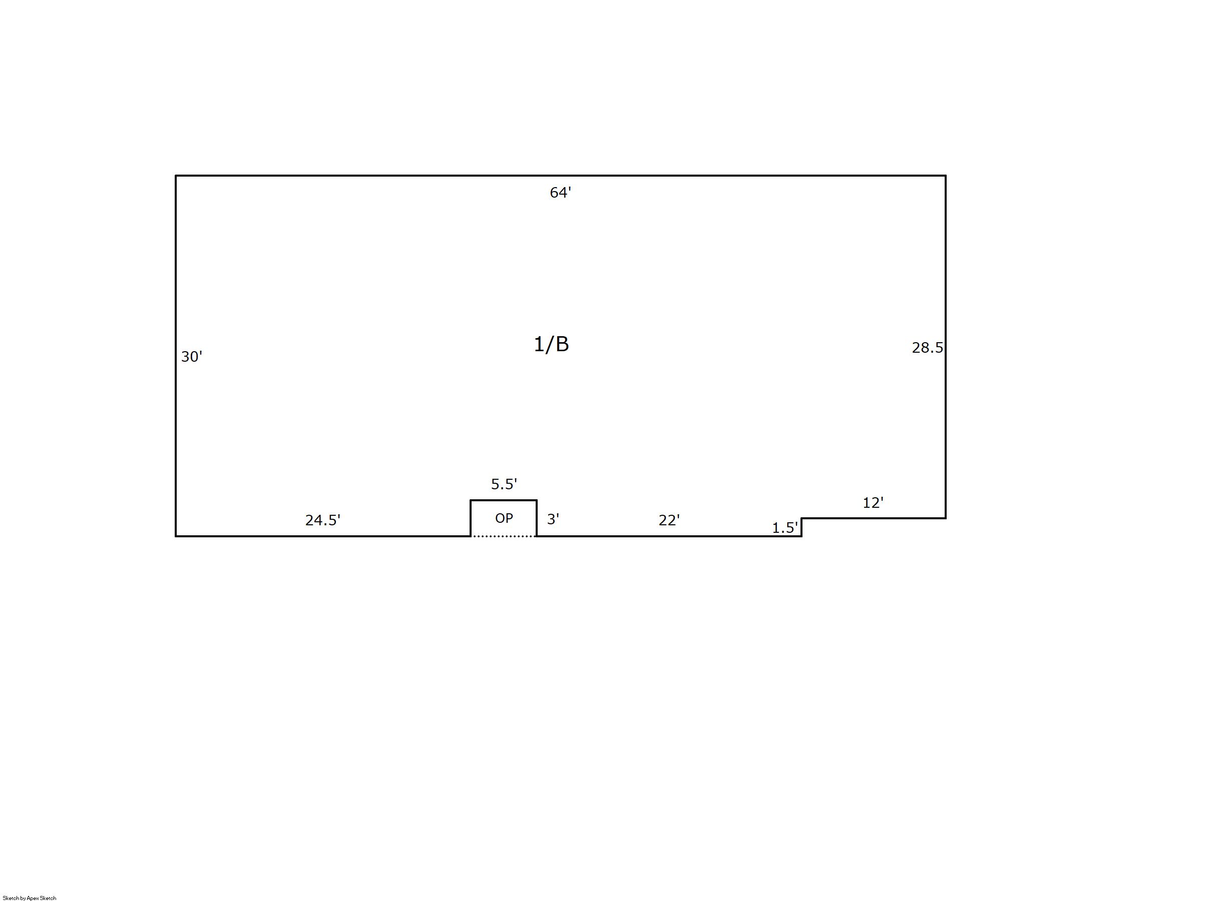
Building 1
| AccountNo | Building ID | Occupancy |
|---|---|---|
| R8990406 | 1 | Single Family Residential |
| ID | Type | NBHD | Occupancy | % Complete | Bedrooms | Baths |
|---|---|---|---|---|---|---|
| 1 | Residential | 7R0004 | Single Family Residential | 100 | 3 | 2.00 |
| ID | Exterior | Roof Cover | Interior | HVAC | Perimeter | Units | Unit Type | Make |
|---|---|---|---|---|---|---|---|---|
| 1 | Frame Hardboard | Composition Shingle | Drywall | Central Air to Air | 194 | 0 | NA | NA |
| ID | Square Ft | Condo SF | Total Basement SF | Finished Basement SF | Garage SF | Carport SF | Balcony SF | Porch SF |
|---|---|---|---|---|---|---|---|---|
| 1 | 1,886 | 0 | 1,886 | 0 | 0 | 0 | 0 | 16 |
| ID | Built As | Square Ft | Year Built | Stories | Length | Width |
|---|---|---|---|---|---|---|
| 1.00 | Modular 1 Story | 1,886 | 2024 | 1 | 0 | 0 |
| ID | Detail Type | Description | Units |
|---|---|---|---|
| 1 | Basement | Total Basement SF | 1886.00 |
| 1 | Fixture | Full Bath | 2.00 |
| 1 | Porch | Slab Roof Ceil | 16.00 |
| Account | Parcel | Account Type | Tax Year | Buildings | Actual Value | Local Govt Assessed Value | School Assessed Value |
|---|---|---|---|---|---|---|---|
| R8990406 | 080106107001 | Residential | 2026 | 1 | 486,212 | 30,380 | 34,280 |
| Type | Code | Description | Actual Value | Local Govt Assessed Value | School Assessed Value | Acres | Land SqFt |
|---|---|---|---|---|---|---|---|
| Improvement | 1212 | SINGLE FAMILY RESIDENTIAL IMPROVEMENTS | 405,190 | 25,320 | 28,570 | 0.000 | 0 |
| Land | 1112 | SINGLE FAMILY RESIDENTIAL-LAND | 81,022 | 5,060 | 5,710 | 0.310 | 13,504 |
| Totals | - | - | 486,212 | 30,380 | 34,280 | 0.310 | 13,504 |
Comparable sales for your Residential or Commercial property may be found using our SALES SEARCH TOOL
Values are updated annually on May 1st for Real Property and June 15th for Personal Property and Oil and Gas.
| Account | Parcel | Account Type | Tax Year | Buildings | Actual Value | Local Govt Assessed Value | School Assessed Value |
|---|---|---|---|---|---|---|---|
| R8990406 | 080106107001 | Residential | 2026 | 1 | 486,212 | 30,380 | 34,280 |
| Tax Area | District ID | District Name | Local Govt Mill Levy |
School Mill Levy |
Estimated Taxes |
|---|---|---|---|---|---|
| 5062 | 0700 | AIMS JUNIOR COLLEGE | 6.313 | 0.000 | $191.79 |
| 5062 | 0911 | EATON AREA PARK AND RECREATION DISTRICT | 5.425 | 0.000 | $164.81 |
| 5062 | 0508 | GALETON FIRE | 4.000 | 0.000 | $121.52 |
| 5062 | 0606 | GALETON SANITATION | 0.000 | 0.000 | $0.00 |
| 5062 | 1050 | HIGH PLAINS LIBRARY | 3.044 | 0.000 | $92.48 |
| 5062 | 0304 | NORTH WELD COUNTY WATER (NWC) | 0.000 | 0.000 | $0.00 |
| 5062 | 0301 | NORTHERN COLORADO WATER (NCW) | 1.000 | 0.000 | $30.38 |
| 5062 | 0202 | SCHOOL DIST RE2-EATON | 0.000 | 34.206 | $1,172.58 |
| 5062 | 0100 | WELD COUNTY | 15.956 | 0.000 | $484.74 |
| 5062 | 1200 | WEST GREELEY CONSERVATION | 0.414 | 0.000 | $12.58 |
| Total | - | - | 36.152 | 34.206 | $2,270.88 |
The estimate of tax is based on the prior year mill levy and the 2025 projected assessment rates. Mill levies and tax estimates will be updated yearly on December 22nd for the current year. Additional information can be found at https://assessor.weld.gov
- 2025 NOV

- 2024 (not available)
- 2023 (not available)
- 2022 (not available)
- 2021 (not available)
- 2020 (not available)
- 2019 (not available)

