Account: R8991433
April 5, 2026
| Account | Parcel | Account Type | Tax Year | Buildings | Actual Value | Local Govt Assessed Value | School Assessed Value |
|---|---|---|---|---|---|---|---|
| R8991433 | 096320132001 | Agricultural | 2026 | 2 | 427,913 | 27,960 | 31,340 |
| Legal |
|---|
| Lot 1 Block 21 BERRYMAN FARM AMD FIRST RPLT LOT 1&2 BLOCK 21 & OUTLOT 3 |
| Subdivision | Block | Lot | Land Economic Area |
|---|---|---|---|
| BERRYMAN FARM AMD FIRST RPLT LOT 1&2 BLOCK 21 & OUTLOT 3 | 21 | 1 | BARRYMAN FARM AG |
| Property Address | Property City | Section | Township | Range |
|---|---|---|---|---|
| 25524 HIGHWAY 34 | WELD | 20 | 05 | 64 |
| Account | Parcel | Account Type | Tax Year | Buildings | Actual Value | Local Govt Assessed Value | School Assessed Value |
|---|---|---|---|---|---|---|---|
| R8991433 | 096320132001 | Agricultural | 2026 | 2 | 427,913 | 27,960 | 31,340 |
| Account | Owner Name | Address |
|---|---|---|
| R8991433 | BERRYMAN FARM COMPANY | PO BOX 525 KERSEY, CO 806440525 |
| Account | Parcel | Account Type | Tax Year | Buildings | Actual Value | Local Govt Assessed Value | School Assessed Value |
|---|---|---|---|---|---|---|---|
| R8991433 | 096320132001 | Agricultural | 2026 | 2 | 427,913 | 27,960 | 31,340 |
| Reception | Rec Date | Type | Grantor | Grantee | Doc Fee | Sale Date | Sale Price |
|---|---|---|---|---|---|---|---|
| 5026362 | 04-30-2025 | PLT | BERRYMAN FARM AMD FIRST RPLT LOT 1&2 BLOCK 21 & OUTLOT 3 | BERRYMAN FARM AMD FIRST RPLT LOT 1&2 BLOCK 21 & OUTLOT 3 | 0.00 | 04-15-2025 | 0 |
| 5033190 | 06-03-2025 | BSDN | BERRYMAN FARM HOMEOWNERS ASSOCIATION | BERRYMAN FARM COMPANY | 0.00 | 04-15-2025 | 0 |
*If the hyperlink for the reception number does not work, try a manual search in the Clerk and Recorder records. Use the Grantor or Grantee in your search.
| Account | Parcel | Account Type | Tax Year | Buildings | Actual Value | Local Govt Assessed Value | School Assessed Value |
|---|---|---|---|---|---|---|---|
| R8991433 | 096320132001 | Agricultural | 2026 | 2 | 427,913 | 27,960 | 31,340 |
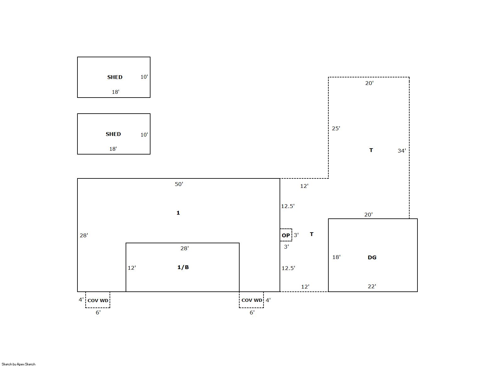
Building 1
| AccountNo | Building ID | Occupancy |
|---|---|---|
| R8991433 | 1 | Single Family Residential on Ag |
| ID | Type | NBHD | Occupancy | % Complete | Bedrooms | Baths |
|---|---|---|---|---|---|---|
| 1 | Residential | 6R2001 | Single Family Residential on Ag | 100 | 3 | 1.00 |
| ID | Exterior | Roof Cover | Interior | HVAC | Perimeter | Units | Unit Type | Make |
|---|---|---|---|---|---|---|---|---|
| 1 | Frame Hardboard | Composition Shingle | Drywall | Central Air to Air | 156 | 0 | NA | NA |
| ID | Square Ft | Condo SF | Total Basement SF | Finished Basement SF | Garage SF | Carport SF | Balcony SF | Porch SF |
|---|---|---|---|---|---|---|---|---|
| 1 | 1,400 | 0 | 336 | 336 | 396 | 0 | 0 | 48 |
| ID | Built As | Square Ft | Year Built | Stories | Length | Width |
|---|---|---|---|---|---|---|
| 1.00 | Ranch 1 Story | 1,400 | 1920 | 1 | 0 | 0 |
| ID | Detail Type | Description | Units |
|---|---|---|---|
| 1 | Basement | Finished | 336.00 |
| 1 | Basement | Total Basement SF | 336.00 |
| 1 | Fixture | Full Bath | 1.00 |
| 1 | Garage | Detached | 396.00 |
| 1 | Porch | Cvrd Wood Deck | 48.00 |
| 1 | Porch | Open Slab | 1027.00 |
| 1 | Porch | Slab Roof Ceil | 9.00 |
| 1 | Storage | Steel | 360.00 |
Building 2
| AccountNo | Building ID | Occupancy |
|---|---|---|
| R8991433 | 2 | Shed - Utility |
| ID | Type | NBHD | Occupancy | % Complete | Bedrooms | Baths |
|---|---|---|---|---|---|---|
| 2 | Out Building | NA | Shed - Utility | 100 | 0 | 0.00 |
| ID | Exterior | Roof Cover | Interior | HVAC | Perimeter | Units | Unit Type | Make |
|---|---|---|---|---|---|---|---|---|
| 2 | NA | NA | NA | None | 108 | 0 | NA | NA |
| ID | Square Ft | Condo SF | Total Basement SF | Finished Basement SF | Garage SF | Carport SF | Balcony SF | Porch SF |
|---|---|---|---|---|---|---|---|---|
| 2 | 1,440 | 0 | 0 | 0 | 0 | 0 | 0 | 0 |
| ID | Built As | Square Ft | Year Built | Stories | Length | Width |
|---|---|---|---|---|---|---|
| 2.00 | Shed - Utility | 1,440 | 1920 | 0 | 48 | 30 |
No Additional Details for Building 2
| Account | Parcel | Account Type | Tax Year | Buildings | Actual Value | Local Govt Assessed Value | School Assessed Value |
|---|---|---|---|---|---|---|---|
| R8991433 | 096320132001 | Agricultural | 2026 | 2 | 427,913 | 27,960 | 31,340 |
| Type | Code | Description | Actual Value | Local Govt Assessed Value | School Assessed Value | Acres | Land SqFt |
|---|---|---|---|---|---|---|---|
| Improvement | 4277 | FARM/RANCH RESIDENCE-IMPS | 422,062 | 26,380 | 29,760 | 0.000 | 0 |
| Improvement | 4280 | ALL OTHER AG IMPS | 5,791 | 1,560 | 1,560 | 0.000 | 0 |
| Land | 4127 | DRY FARM LAND-AGRICULTURAL | 60 | 20 | 20 | 0.700 | 30,511 |
| Totals | - | - | 427,913 | 27,960 | 31,340 | 0.700 | 30,511 |
Comparable sales for your Residential or Commercial property may be found using our SALES SEARCH TOOL
Values are updated annually on May 1st for Real Property and June 15th for Personal Property and Oil and Gas.
| Account | Parcel | Account Type | Tax Year | Buildings | Actual Value | Local Govt Assessed Value | School Assessed Value |
|---|---|---|---|---|---|---|---|
| R8991433 | 096320132001 | Agricultural | 2026 | 2 | 427,913 | 27,960 | 31,340 |
| Tax Area | District ID | District Name | Local Govt Mill Levy |
School Mill Levy |
Estimated Taxes |
|---|---|---|---|---|---|
| 2635 | 0700 | AIMS JUNIOR COLLEGE | 6.313 | 0.000 | $176.51 |
| 2635 | 1050 | HIGH PLAINS LIBRARY | 3.044 | 0.000 | $85.11 |
| 2635 | 0417 | KERSEY TOWN | 17.205 | 0.000 | $481.05 |
| 2635 | 0301 | NORTHERN COLORADO WATER (NCW) | 1.000 | 0.000 | $27.96 |
| 2635 | 0515 | PLATTE VALLEY FIRE | 5.165 | 0.000 | $144.41 |
| 2635 | 0207 | SCHOOL DIST RE7-KERSEY | 0.000 | 11.014 | $345.18 |
| 2635 | 0100 | WELD COUNTY | 15.956 | 0.000 | $446.13 |
| 2635 | 1200 | WEST GREELEY CONSERVATION | 0.414 | 0.000 | $11.58 |
| Total | - | - | 49.097 | 11.014 | $1,717.93 |
The estimate of tax is based on the prior year mill levy and the 2025 projected assessment rates. Mill levies and tax estimates will be updated yearly on December 22nd for the current year. Additional information can be found at https://assessor.weld.gov
- 2025 NOV

- 2024 (not available)
- 2023 (not available)
- 2022 (not available)
- 2021 (not available)
- 2020 (not available)
- 2019 (not available)

